7/10
Paylaş
Resmi Orjinal Boyutunda Göster
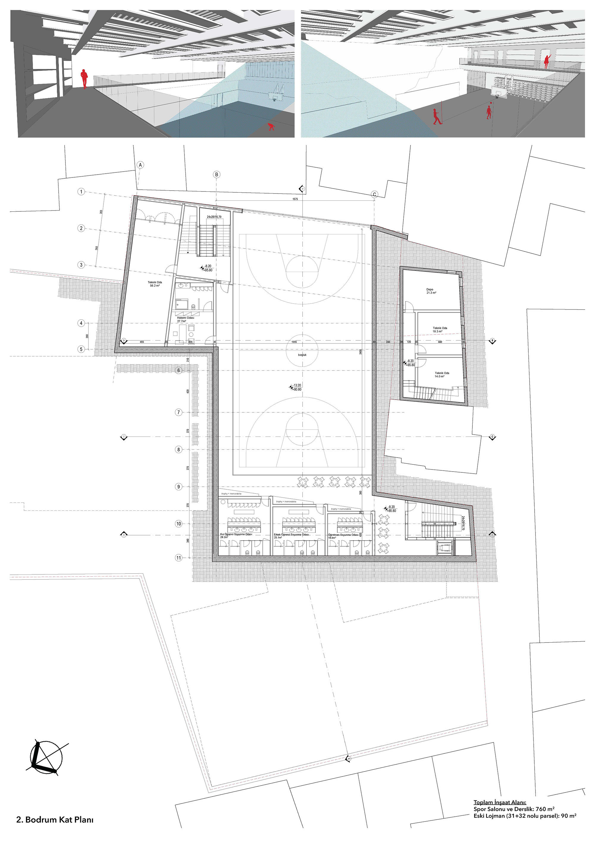
Alman Lisesi_Erginoglu_calislar
Project Location: İstanbul, Beyoğlu
Project Office: Erginoğlu & Çalışlar Mimarlık
Project Type: High School
Proje Tipi Grubu: Eşdeğer Mansiyon
Tasarım Ekibi: Hasan Çalışlar, Kerem Erginoğlu, Romain Cadoux, Quentin Gaucher, Burçe Karadağ