47/49
Paylaş
Resmi Orjinal Boyutunda Göster
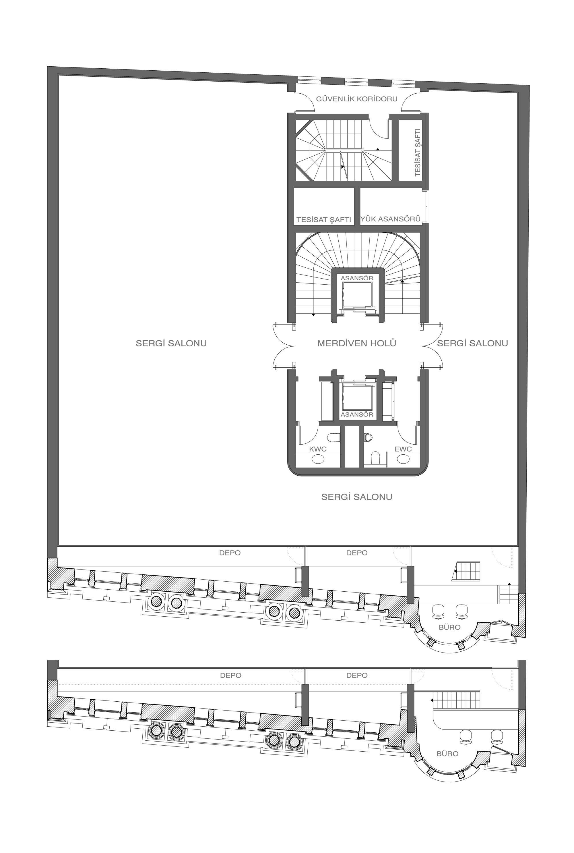
Suna ve İnan Kıraç Vakfı Pera Müzesi Restorasyonu
Proje Yeri: İstanbul, Beyoğlu
Proje Ofisi: Yenilem Mimarlık
Proje Tipi: Müze
Proje Tipi Grubu: Kültür
Tasarım Ekibi: Sinan Genim
İşveren: Suna ve İnan Kıraç Vakfı
Yardımcı: Nesrin Küçükbayrak, Belma Barış Kurtel, Özgen Esen, Nesrin Taşkın, Naime Alaybaşı, Özlem Şenoğulları
Ana Yüklenici: Ergün Gürsoy, Gürsoy Group
İç Mekan Projesi: Sinan Genim
Proje Yöneticisi: Sinan Genim, Belma Barış Kurtel
Konsept Tasarımı: Sinan Genim
Uygulama Projesi: Sinan Genim, Belma Barış Kurtel
Aydınlatma Projesi: Total Aydınlatma
Statik Projesi: Fonksiyon Mühendislik, Attila Çaydamlı, Feridun Gültekin
Mekanik Projesi: Hasel - Selim Evyapan
Elektrik Projesi: Dasel - Korkut Daşdemir
Tesisat Projesi: Hasel - Selim Evyapan
Akustik Projesi: Bose, Mustafa Şahin
Fotoğraf: Ömer Kokal, Kerim Ayhan Yanık, Uğur Ataç
Mimari Mesleki Kontrollük: Sinan Genim
Şantiye Yöneticisi: Mustafa Utku
Proje Başlangıç Yılı: 2002
Proje Bitiş Yılı: 2005
İnşaat Başlangıç Yılı: 2002
İnşaat Bitiş Yılı: 2005
Arsa Alanı: 475 m2
Toplam İnşaat Alanı: 3,685 m2