46/51
Paylaş
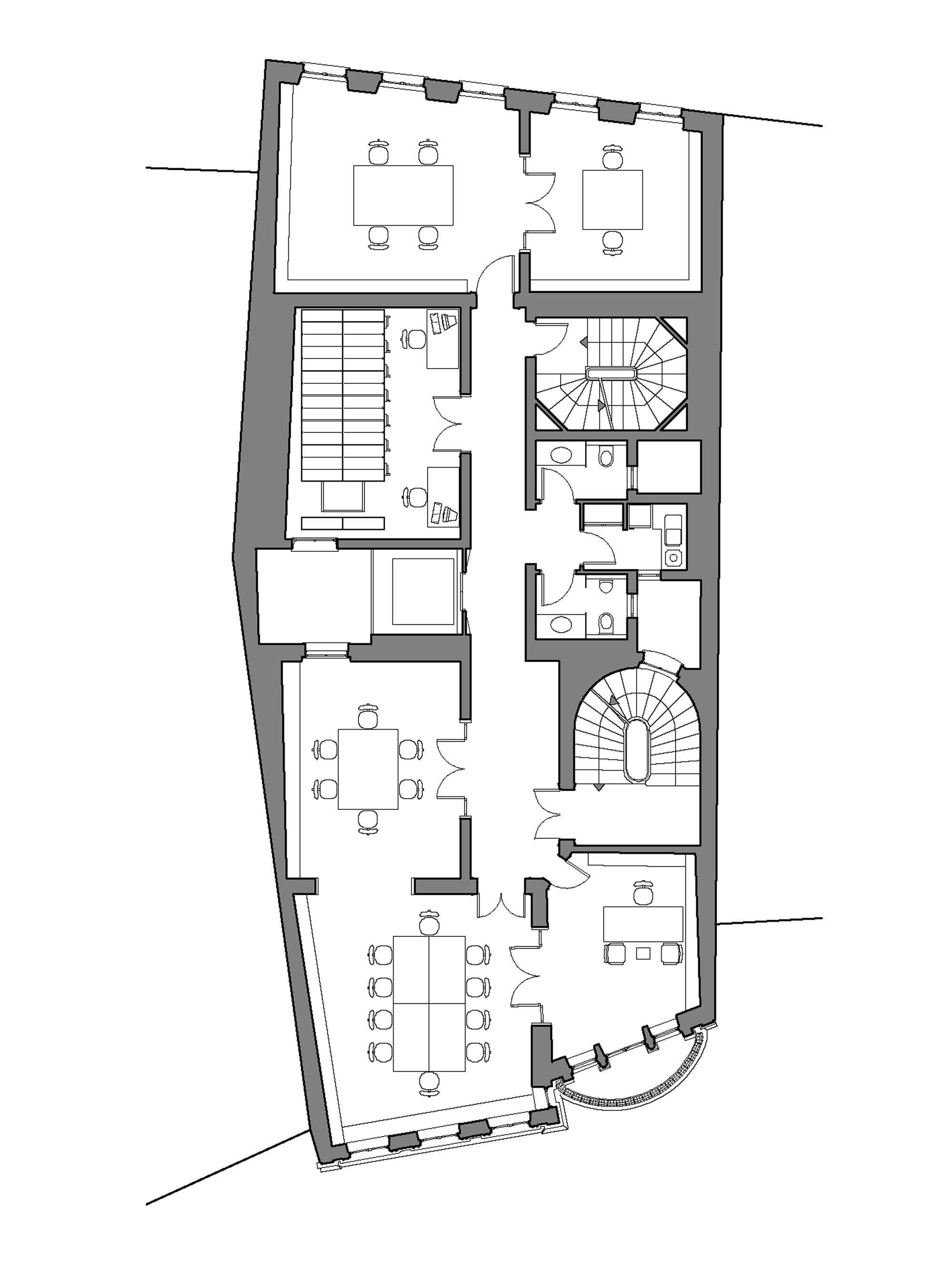
Resmi Orjinal Boyutunda Göster
Suna ve İnan Kıraç Vakfı İstanbul Araştırmaları Enstitüsü Restorasyonu
Proje Yeri: İstanbul, Beyoğlu
Proje Ofisi: Yenilem Mimarlık
Proje Tipi: Kütüphane, Diğer Eğitim Yapıları
Proje Tipi Grubu: Kültür
Tasarım Ekibi: Sinan Genim
İşveren: Suna ve İnan Kıraç Vakfı
Yardımcı: Belma Barış Kurtel, Özgen Esen, Yusuf Aldırmaz, Bengü Selçuk, Deniz Kösemen, Zafer Nuriyev
Ana Yüklenici: Ergün Gürsoy, Gürsoy Group
İç Mekan Projesi: Sinan Genim, Nurus
Proje Yöneticisi: Sinan Genim, Belma Barış Kurtel
Konsept Tasarımı: Sinan Genim
Uygulama Projesi: Sinan Genim, Belma Barış Kurtel
Statik Projesi: Fonksiyon Mühendislik, Attila Çaydamlı, Feridun Gültekin
Mekanik Projesi: Hasel - Selim Evyapan
Elektrik Projesi: Dasel - Korkut Daşdemir
Tesisat Projesi: Hasel - Selim Evyapan
Altyapı Projesi: Hasel - Selim Evyapan
Fotoğraf: Ömer Kokal, Ahmet Bilal Arslan
Mimari Mesleki Kontrollük: Sinan Genim
Şantiye Yöneticisi: Mehmet Akpınar
Proje Başlangıç Yılı: 2004
Proje Bitiş Yılı: 2005
İnşaat Başlangıç Yılı: 2005
İnşaat Bitiş Yılı: 2006
Arsa Alanı: 295 m2
Toplam İnşaat Alanı: 2005 m2