60/70
Paylaş
Resmi Orjinal Boyutunda Göster
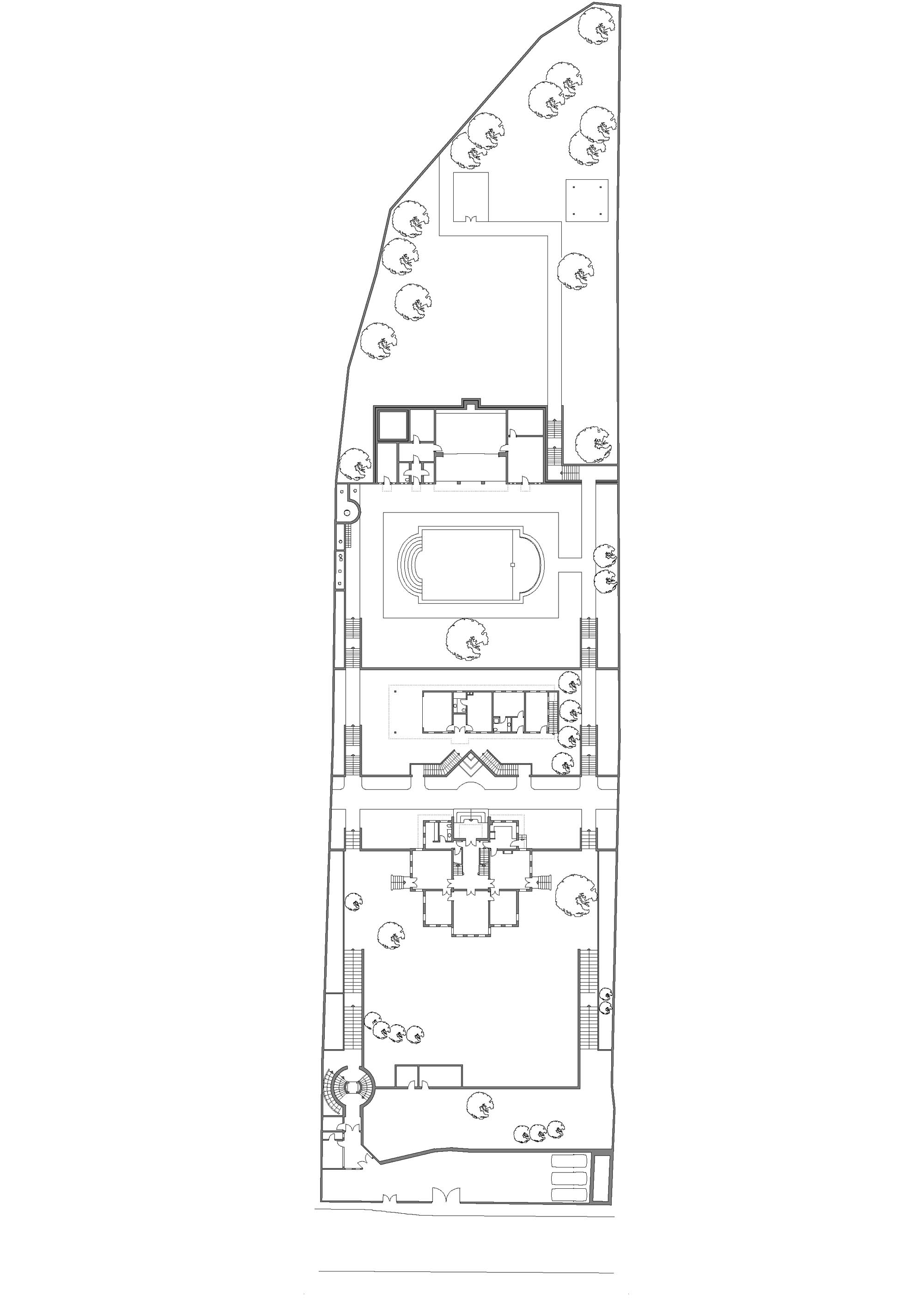
Süren Evi Restorasyonu
Proje Yeri: Üsküdar, İstanbul
Proje Ofisi: Yenilem Mimarlık
Proje Tipi: Tek Ev / Villa
Proje Tipi Grubu: Konut
Tasarım Ekibi: Sinan Genim
İşveren: Hatçe Süren, Faruk Süren
Yardımcı: Nesrin Küçükbayrak, Nesrin Taşkın, Belma Barış Kurtel, Özkan Bulgan, Neşe Zaloğlu, Memet Charum, Ferda Masatlıoğlu
Ana Yüklenici: Suat Berdan, Mehmet Fatih Gül
Proje Yöneticisi: Sinan Genim, Belma Barış Kurtel
Konsept Tasarımı: Sinan Genim
Uygulama Projesi: Sinan Genim, Belma Barış Kurtel
Statik Projesi: Fonksiyon Mühendislik, Attila Çaydamlı, Feridun Gültekin
Mekanik Projesi: Sami Bölükbaşıoğlu
Elektrik Projesi: Erol Çığırgan
Tesisat Projesi: Sami Bölükbaşıoğlu
Fotoğraf: Murat Germen
Mimari Mesleki Kontrollük: Sinan Genim
Proje Başlangıç Yılı: 1992
Proje Bitiş Yılı: 1996
İnşaat Başlangıç Yılı: 1992
İnşaat Bitiş Yılı: 1996
Arsa Alanı: 6,000 m²
Toplam İnşaat Alanı: 1,250 m²