10/14
Paylaş
Resmi Orjinal Boyutunda Göster
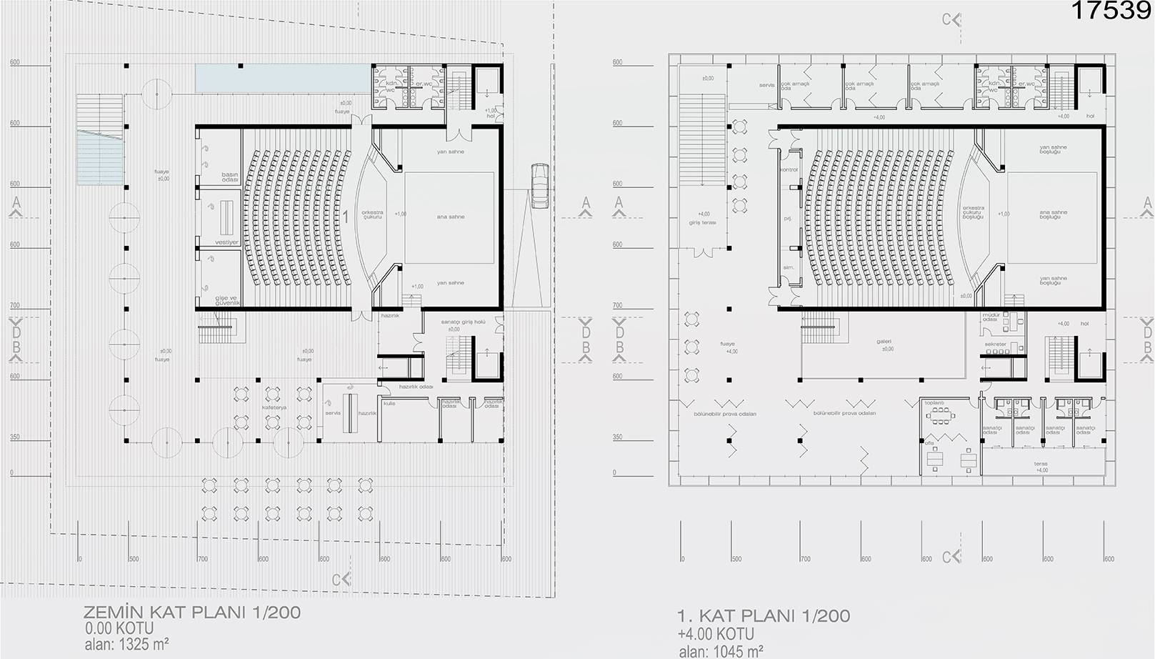
Mansiyon - Muratpaşa Belediyesi Çok Amaçlı Gösteri Merkezi Atölye ve Sahnesi Mimari Fikir Proje Yarışması
Proje Yeri: Antalya, Muratpaşa
Proje Ofisi: Kolektif Mimarlar
Proje Tipi: Kültür Merkezi
Proje Tipi Grubu: Eşdeğer Mansiyon
Tasarım Ekibi: Barış Demir, Sıddık Güvendi
Danışman: Eda Ekim, Mehmet Ali Yılmaz, Serhan Mumcu, Birkan Yüksek
Yardımcı: Soyer Bayraktar