20/25
Paylaş
Resmi Orjinal Boyutunda Göster
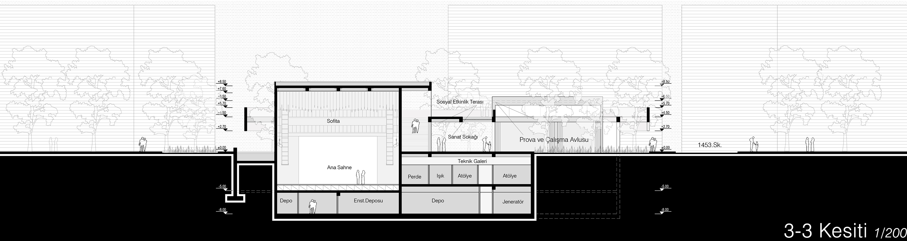
Antalya Muratpaşa Belediyesi Çok Amaçlı Gösteri Merkezi Atölye ve Sahnesi (Opera ve Tiyatro İşliği) Mimari Fikir Proje Yarışması
Proje Yeri: Antalya, Muratpaşa
Proje Ofisi: OfficePAN Mimarlık, Rasa Mimarlık, NODE Architects
Proje Tipi: Kültür Merkezi
Proje Tipi Grubu: 1. Ödül
Tasarım Ekibi: Cihan Sevindik, Zeynep Canan Aksu, Tuna Han Koç, Doğan Türkkan
Danışman: Özgür Şentürk, Celal Hakan Şakar, Ahmet Aksoy, Sena İkiz
Yardımcı: Tuğba Bahar Yılmaz