Pafta - 2
3/4
Paylaş
Resmi Orjinal Boyutunda Göster
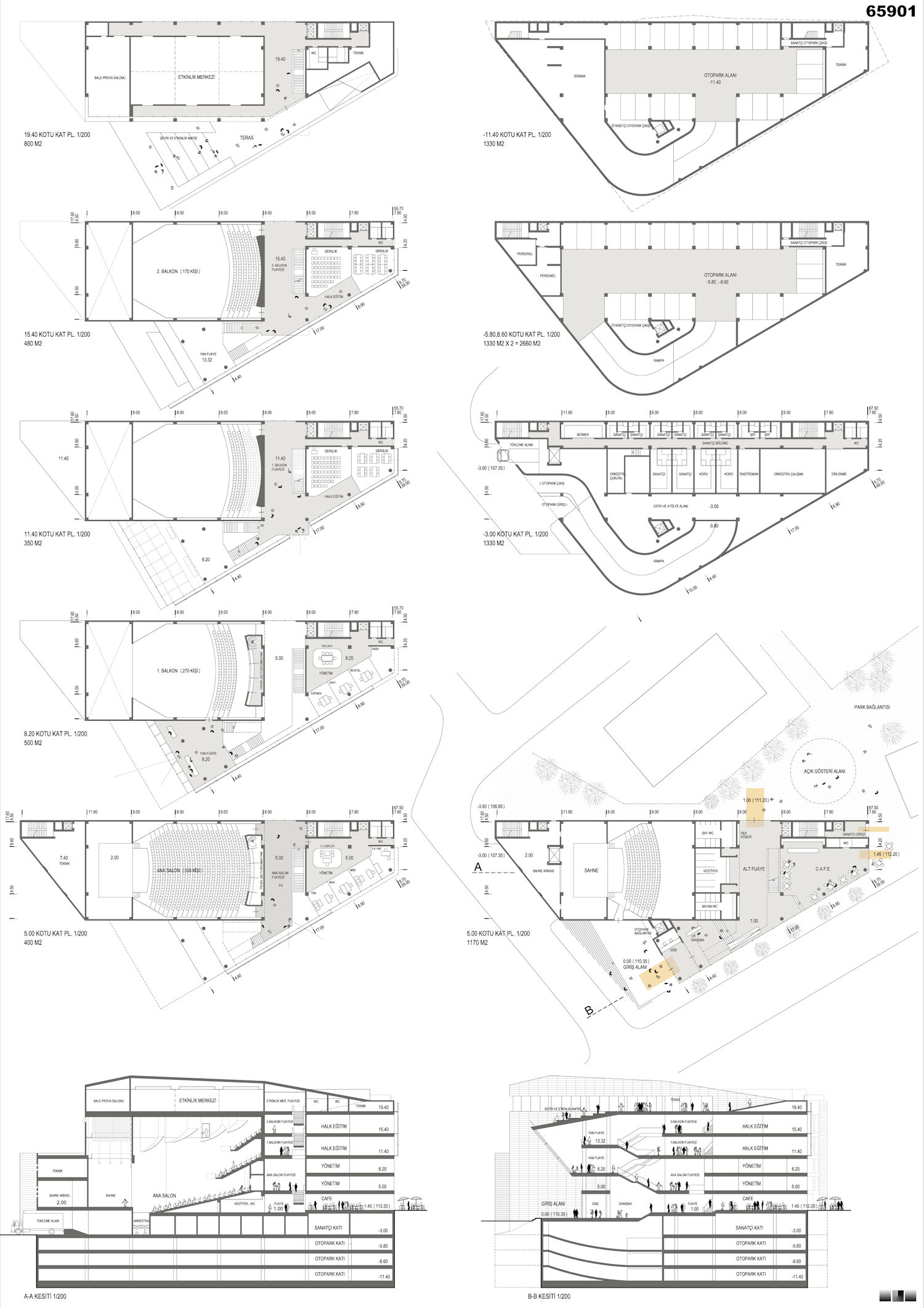
Şişli Halide Edip Adıvar Ulusal Mimari Proje Yarışması, Eşdeğer Mansiyon: Mahir Ünal, Erguvan Özgür Ünal
Proje Yeri: İstanbul
Proje Ofisi: Maer & Partners
Proje Tipi: Kültür Merkezi
Proje Tipi Grubu: Eşdeğer Mansiyon
Tasarım Ekibi: Mahir Ünal, Erguvan Özgür Ünal
Statik Projesi: Melih Bulgur