8/25
Paylaş
Resmi Orjinal Boyutunda Göster
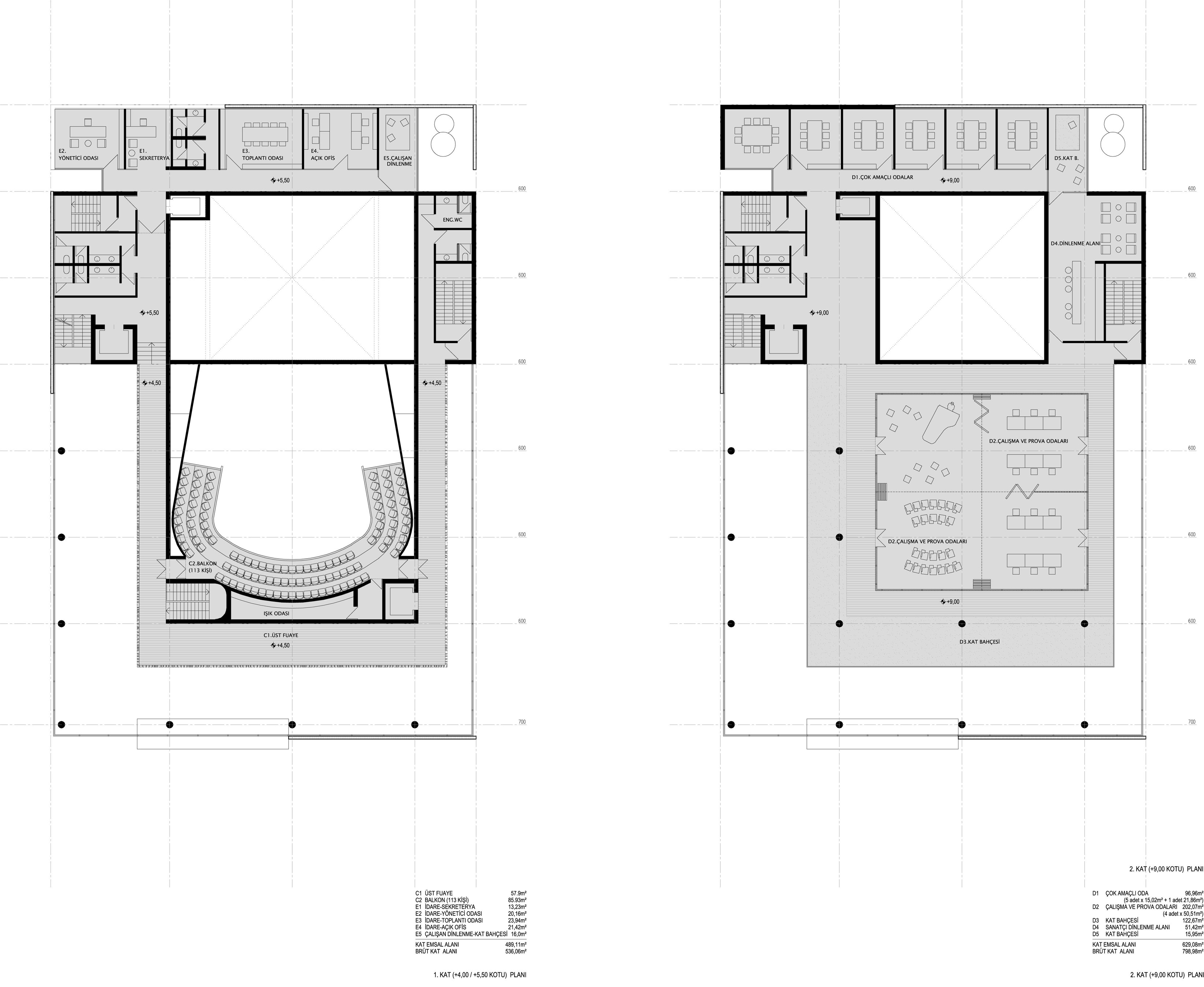
3. Odul (Buda Mimarlık)
Project Location: Antalya, Muratpaşa
Project Office: Buda Mimarlık
Project Type: Cultural Center
Proje Tipi Grubu: 3. Ödül
Tasarım Ekibi: Burak Pelenk
Consultant: Ceyda Özbilen, Kerem Olcaytu, Alp Olcaytu, Mustafa İspir Gürbüz
Yardımcı: Dilara Demiralp, Tuna Torun, Sena Akgül