16/20
Paylaş
Resmi Orjinal Boyutunda Göster
Başlığı girin
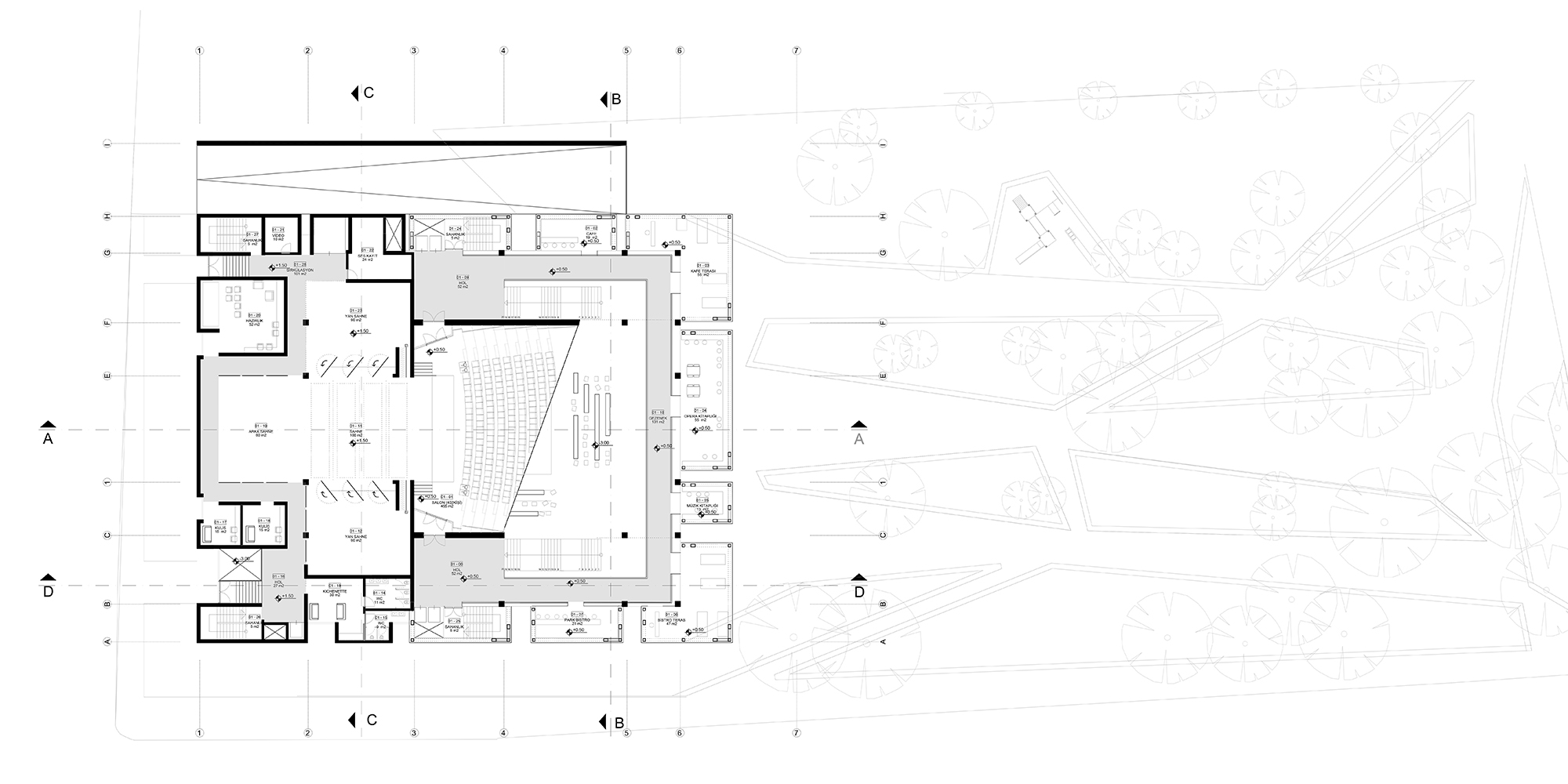
Project Location: Antalya, Muratpaşa
Project Type: Cultural Center
Proje Tipi Grubu: Eşdeğer Mansiyon
Tasarım Ekibi: Alper Derinboğaz, Hakan Tüzün Şengün
Consultant: Oğuz Cem Çelik, Cem Altun, Nurgün Tamer Beyazit, Metin Deniz
Yardımcı: Orçun Girgin, Selçuk Kişmir, Aysu Aysoy, Şevki Topçu, Ecem Çınar, Tarık Keskin