16/22
Paylaş
Resmi Orjinal Boyutunda Göster
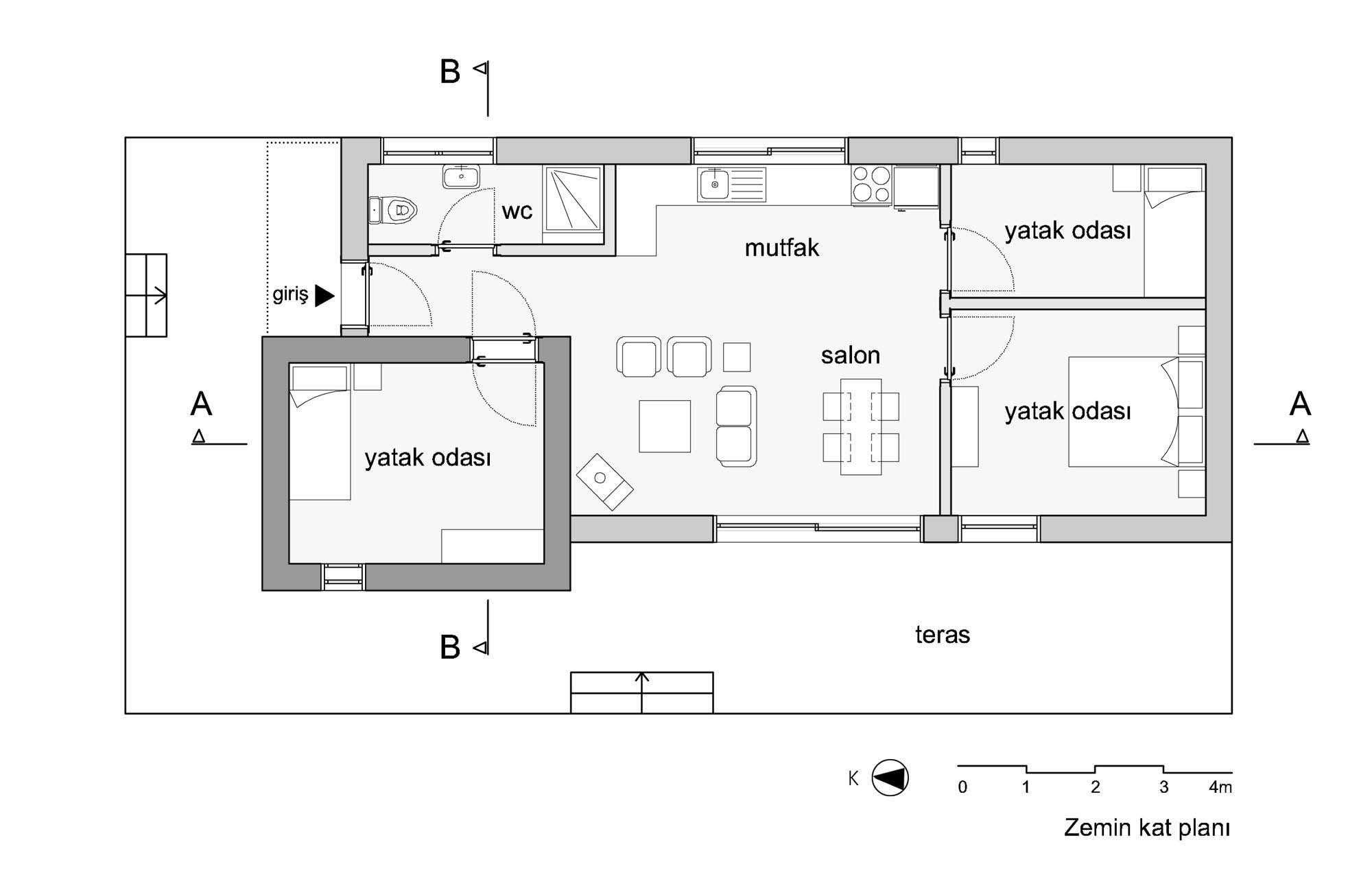
Barbaros Evi
Project Location: Urla, İzmir
Project Office: Onurcan Çakır Mimarlık
Project Type: Single House
Proje Tipi Grubu: Konut
Tasarım Ekibi: Onurcan Çakır
Employer: Onurcan Çakır
Ana Yüklenici: Onurcan Çakır, Önderler İnşaat
Structural Project: Dur İnşaat
Mechanical Project: Proje Fabrikası
Electrical Project: Sgm Elektrik
Plumbing Project: Proje Fabrikası
Akustik Projesi: Onurcan Çakır
Photography: Onurcan Çakır, Ersen Çörekçi
Project Start Date: 2014
Project End Date: 2015
Construction Start Date: 2014
Construction End Date: 2015
Building Plot Area: 375 m²
Total Construction Area: 83,3 m²