11/14
Paylaş
Resmi Orjinal Boyutunda Göster
Eşdeğer Mansiyon (İlker Fatih Özorhon, Güliz Özorhon)
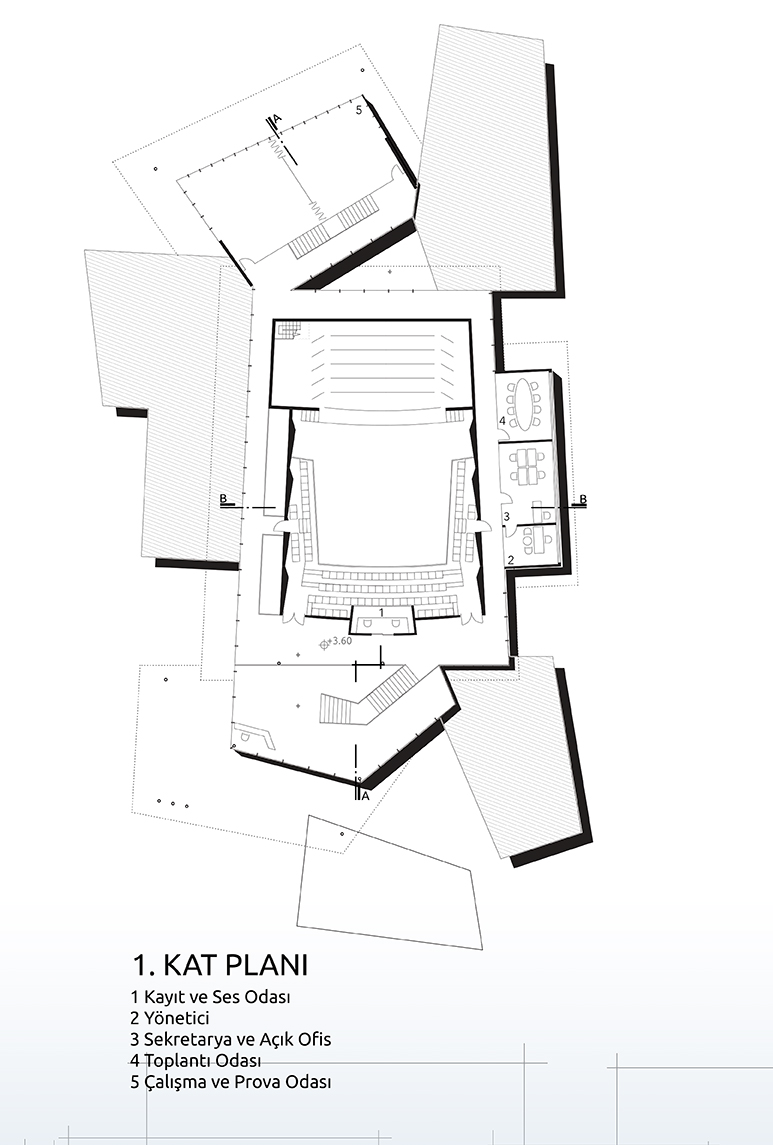
Proje Yeri: Antalya, Muratpaşa
Proje Tipi: Kültür Merkezi
Proje Tipi Grubu: Eşdeğer Mansiyon
Tasarım Ekibi: İlker Fatih Özorhon, Güliz Özorhon
Danışman: Arman Cinel, Bülent Süzer, Anıl Van Duman
Yardımcı: Özgür Öztürk, Onur Tekin, Varlık Yücel, Caner Üretmen, Ender Yıldızhan