7/20
Paylaş
Resmi Orjinal Boyutunda Göster
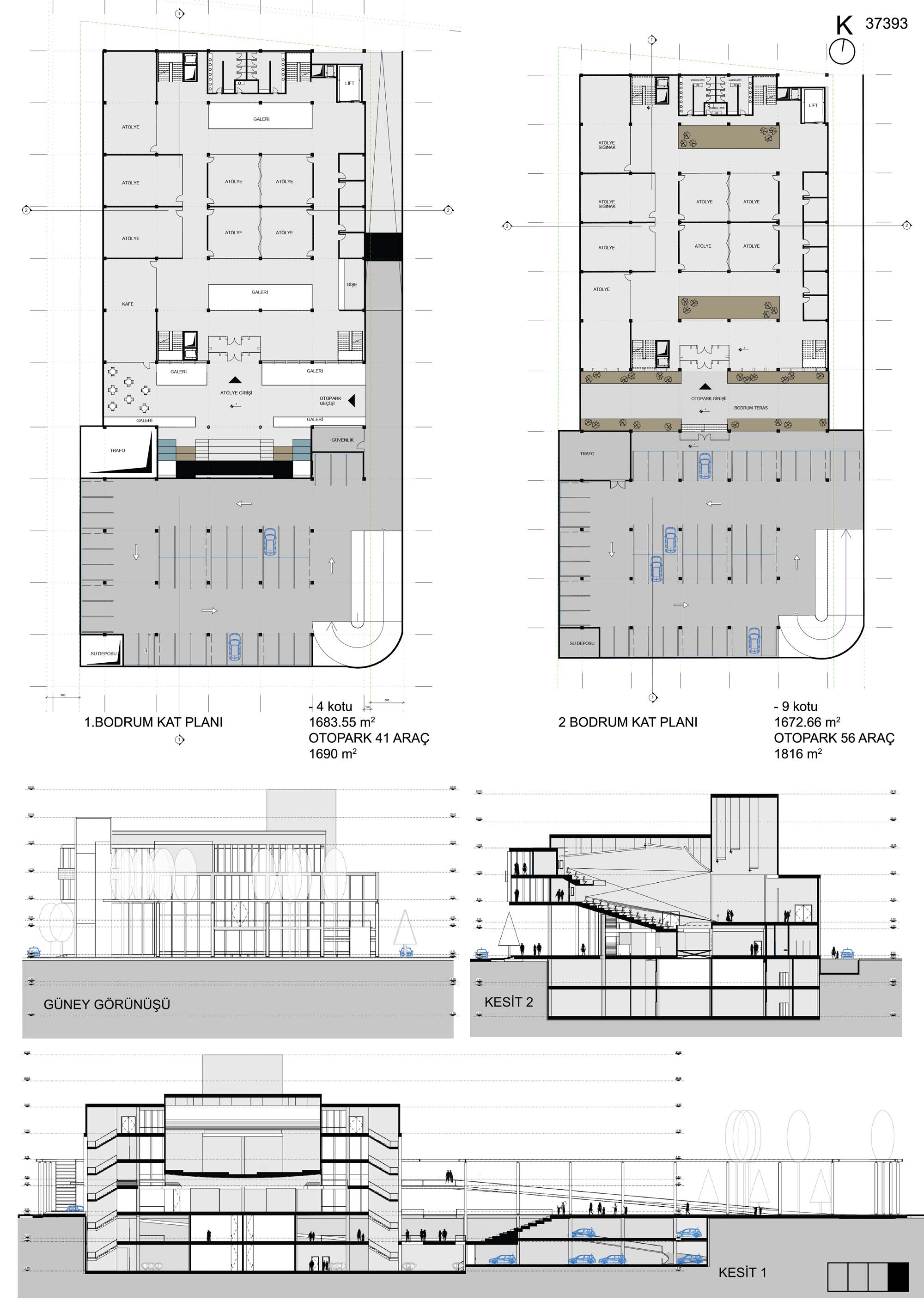
Katılımcı (Nail Atasoy), Muratpaşa Belediyesi Çok Amaçlı Gösteri Merkezi Yarışması
Project Location: Antalya, Muratpaşa
Project Office: DNA Mimarlık Nail Atasoy
Project Type: Cultural Center
Proje Tipi Grubu: Katılımcı
Tasarım Ekibi: Nail Atasoy, Kazım Durmaz, Hülya Tuncer, Sümeyya Erdoğan, Dilan Aktaş
Employer: Muratpaşa Belediyesi
Consultant: Bilal Ateş, Akın Akıncı
Projcet Manager: Nail Atasoy