11/16
Paylaş
Resmi Orjinal Boyutunda Göster
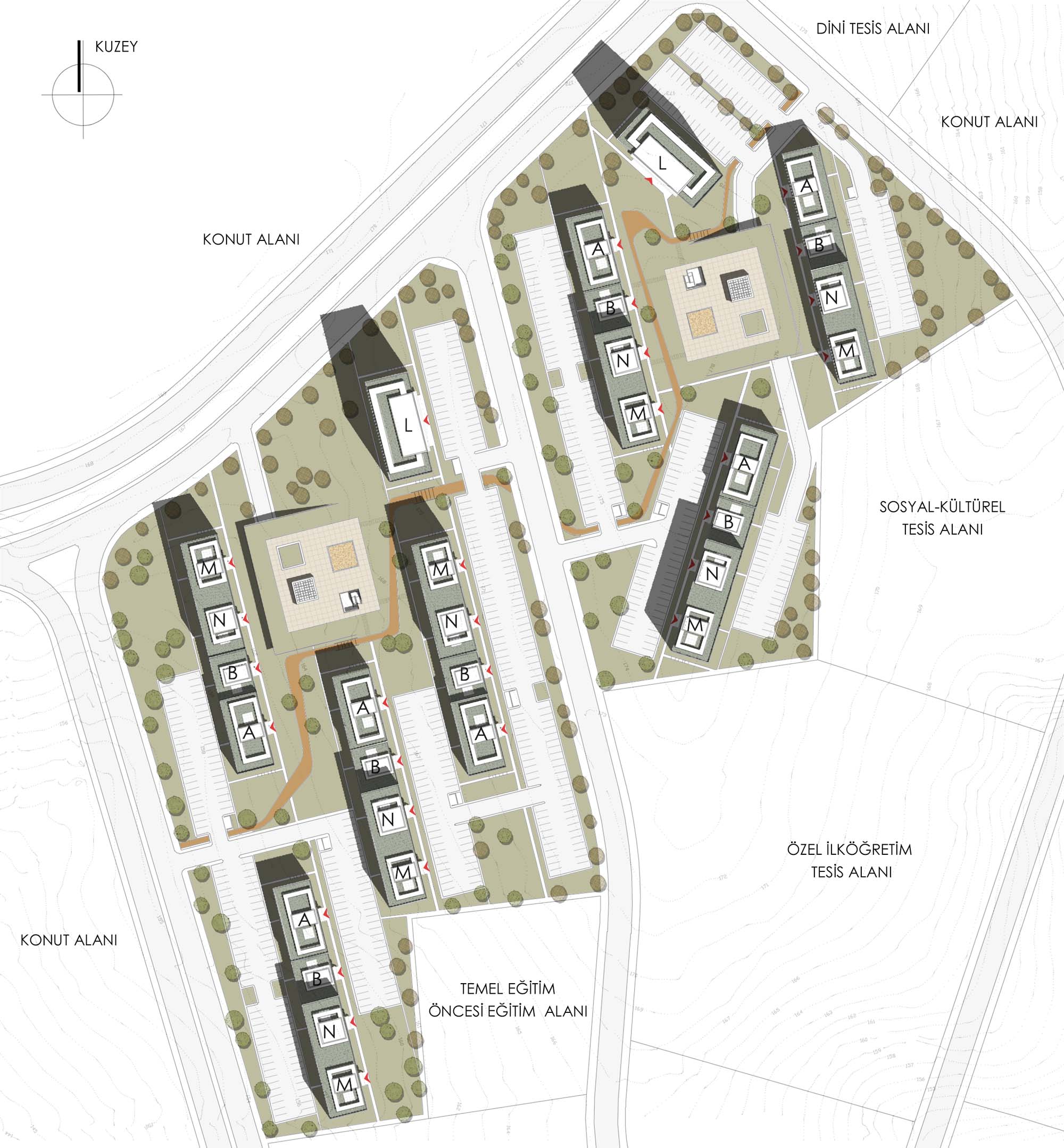
Kayabaşı 17 Bölge Konutları
Project Location: Başakşehir, İstanbul
Project Office: BBMD Bingöl Barka Mimarlık ve Danışmanlık
Project Type: Housing Complex
Proje Tipi Grubu: Konut
Tasarım Ekibi: Özgür Bingöl, İlke Barka, Emre Savga, Tuba Bilgiç
Employer: Toplu Konut İdaresi (TOKİ)
Yardımcı: Berna Göl, Emrah Demir, Cansu Akman, Erkan Pilgir
Ana Yüklenici: Oraka İnşaat
Photography: BBMD Bingöl Barka Mimarlık ve Danışmanlık
Project Start Date: 2009
Project End Date: 2010
Construction Start Date: 2010
Construction End Date: 2012
Building Plot Area: 65,193 m2
Total Construction Area: 140,000 m2