12/13
Paylaş
Resmi Orjinal Boyutunda Göster
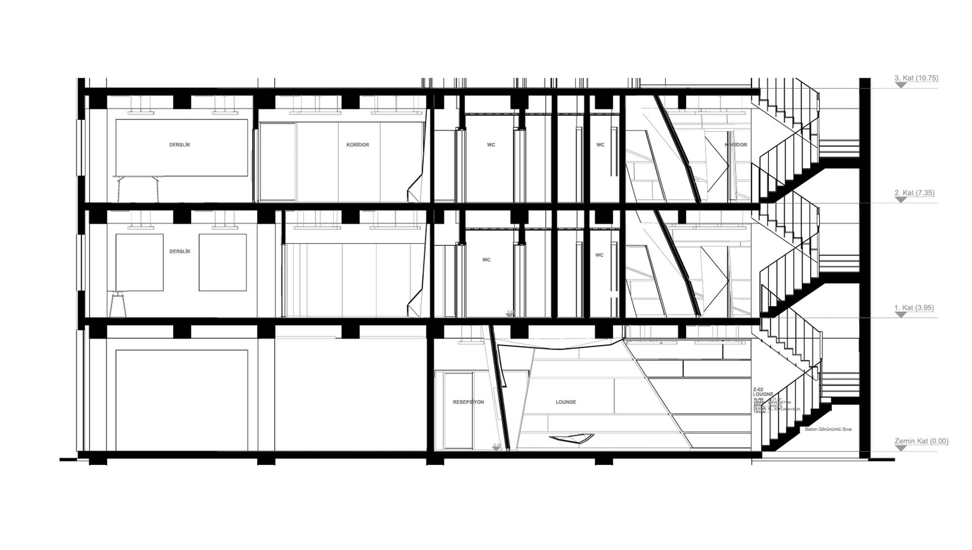
Bilgi Üniversitesi Kozyatağı Merkezi İç Mekan Projesi
Proje Yeri: Kadıköy, İstanbul
Proje Ofisi: Salon Alper Derinboğaz
Proje Tipi: Yüksek Öğretim Yapısı
Proje Tipi Grubu: Eğitim
Tasarım Ekibi: Alper Derinboğaz
İşveren: İstanbul Bilgi Üniversitesi
Yardımcı: Ozan Balçık, Daniele Ronca, Tevfik Saygın Özcan, Işıl Karabulut, Ali Tbikh
Proje Yöneticisi: Şevki Topçu
Toplam İnşaat Alanı: 630 m²