21/22
Paylaş
Resmi Orjinal Boyutunda Göster
1. Ödül
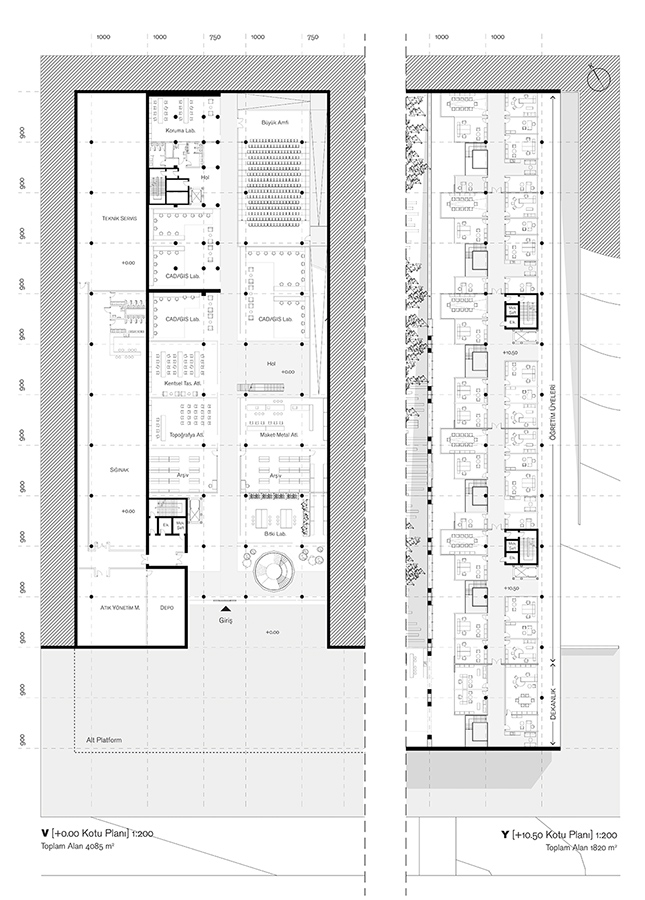
Proje Yeri: Pamukkale, Denizli
Proje Tipi: Yüksek Öğretim Yapısı
Proje Tipi Grubu: 1. Ödül
Tasarım Ekibi: Deniz Aslan, Ozan Önder Özener, Özlem Ünkap İliş, Tuğçe Alkaş, Barış Can Cüce, Çağlar Yılmaz, Erenalp Büyüktopçu, Ali Can Erol