9/15
Paylaş
Resmi Orjinal Boyutunda Göster
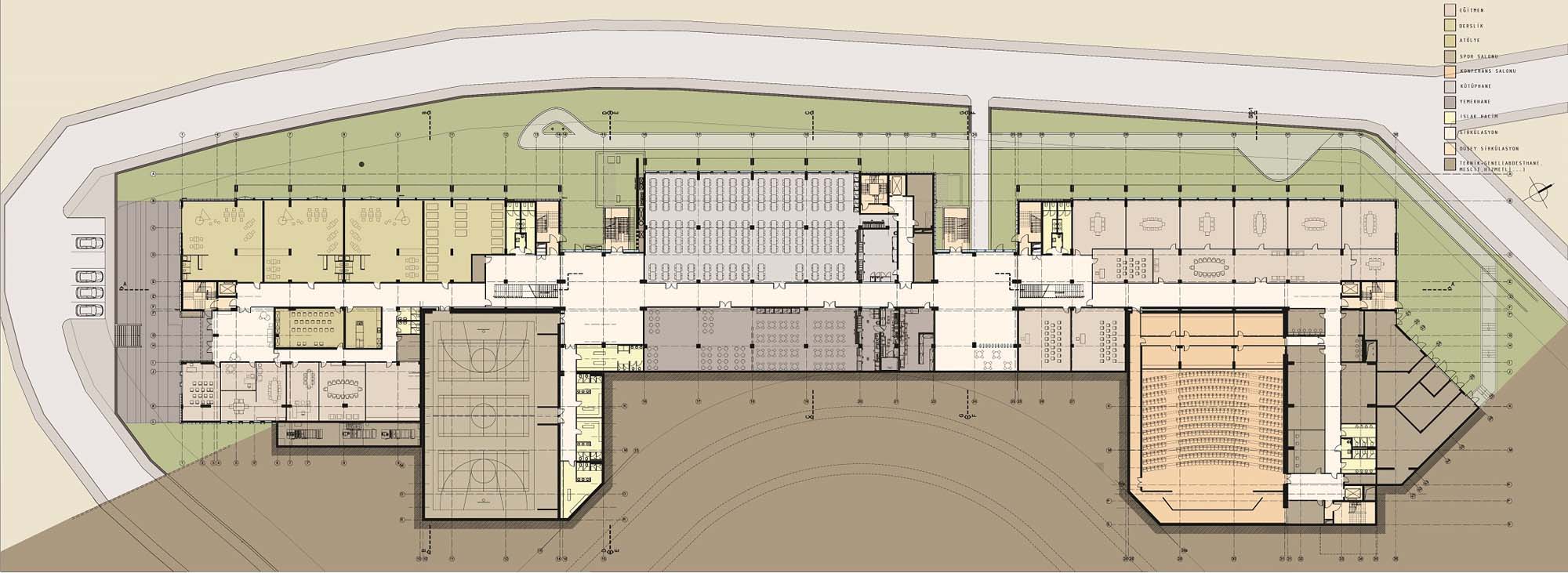
Kiptaş Başakşehir Vaditepe Okul Projesi
Proje Yeri: Başakşehir, İstanbul
Proje Ofisi: Mimarca Tasarım ve Mimarlık
Proje Tipi: İlkokul, Lise / Ortaöğretim
Proje Tipi Grubu: Eğitim
Tasarım Ekibi: Jülide Kazas, Hülya Erdoğan, Hatice Tozar Kılıç, Balkın Çoker Bilici, Canan Oduncu
İşveren: KİPTAŞ
Peyzaj Mimarlığı: KİPTAŞ
İç Mekan Projesi: Mimarca Tasarım ve Mimarlık
Statik Projesi: SDG Mühendislik
Mekanik Projesi: Güney Isı Makina
Elektrik Projesi: Enkom Mühendislik
Proje Başlangıç Yılı: 2015
Arsa Alanı: 14,939 m2
Toplam İnşaat Alanı: 21,636 m2