19/20
Paylaş
Resmi Orjinal Boyutunda Göster
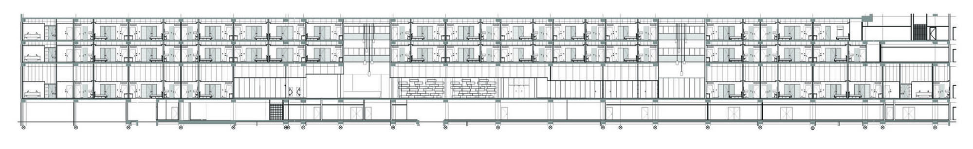
TAV AIRPORT HOTEL İZMİR
Project Location: İzmir, Gaziemir
Project Office: Ulaş Mimarlık
Project Type: Hotel / Motel
Proje Tipi Grubu: Konaklama
Tasarım Ekibi: Şafak Delice, Dilara Kelle, Ulaş Kelle
Employer: BTA Havalimanları Yiyecek ve İçecek Hizmetleri
Yardımcı: Zeynep Karaer, Şima Coşkun
Projcet Manager: TAV İnşaat
Mechanical Project: GMD Mühendislik
Electrical Project: Latek İnşaat Elektrik Proje
Acoustic Consultant: Dilara Kelle
Fire Safety Consultant: Seydi Rıza Güney
Photography: Ulaş Mimarlık
Project Start Date: 2014
Construction End Date: 2015
Total Construction Area: 5,000 m²