10/11
Paylaş
Resmi Orjinal Boyutunda Göster
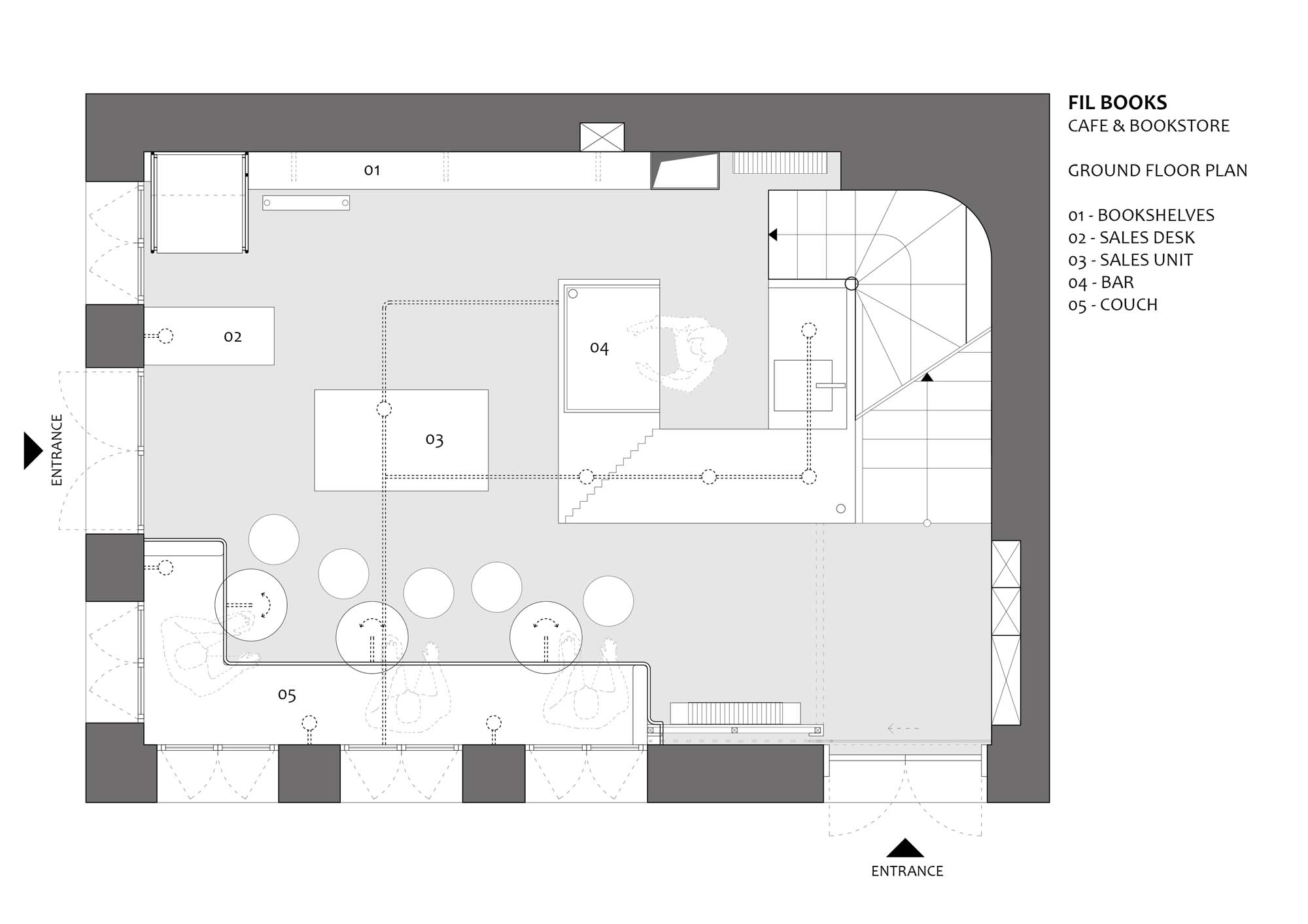
FiL Books
Proje Yeri: Beyoğlu, İstanbul
Proje Ofisi: Halükar Mimarlık
Proje Tipi: Mağaza / Showroom, Restoran / Kafe / Bar
Proje Tipi Grubu: Ticari
Tasarım Ekibi: Bilge Kalfa, Gamze İşcan, Erhan Sevinç
Aydınlatma Projesi: Halükar Mimarlık
Proje Başlangıç Yılı: 2015
Proje Bitiş Yılı: 2015
İnşaat Başlangıç Yılı: 2015
İnşaat Bitiş Yılı: 2015
Toplam İnşaat Alanı: 80 m²