18/23
Paylaş
Resmi Orjinal Boyutunda Göster
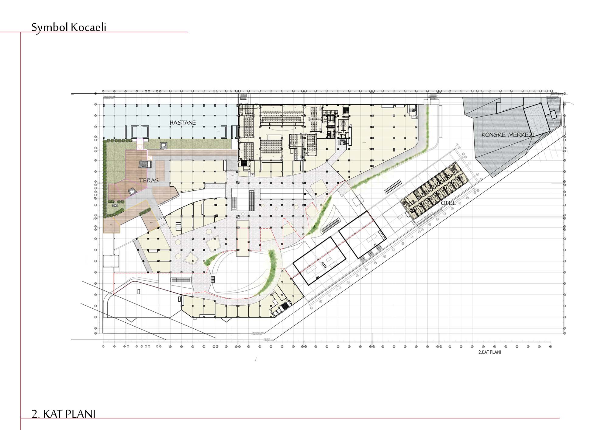
Symbol Kocaeli
Proje Yeri: Kocaeli (İzmit)
Proje Ofisi: Nova Sultani Mimarlık
Proje Tipi: Hastane / Poliklinik, Alışveriş Merkezi, Restoran / Kafe / Bar, Otel / Motel
Proje Tipi Grubu: Sağlık, Konaklama, Ticari
Tasarım Ekibi: Kerem Turhan, Sotiris Tsoulos, Abdullah Gürer, Nurçin Ertan, Mehmet Serdar Koca
Mimari Proje Ekibi: Gülşen Şahin, Özlem Özkan, Öznur Güney
İşveren: Kavanlar İnşaat
Ana Yüklenici: Kavanlar İnşaat
Peyzaj Mimarlığı: SEBA peyzaj
Proje Yöneticisi: Nurçin Yenerer Ertan
Uygulama Projesi: Nova Sultani Mimarlık
Aydınlatma Projesi: Planlux Aydınlatma Tasarımı
Mekanik Projesi: Metta
Elektrik Projesi: Elektra
Yangın Güvenlik Danışmanı: Mustafa Değirmenci
Şantiye Yöneticisi: Mehmet Yalgı
Proje Başlangıç Yılı: 2012
Proje Bitiş Yılı: 2014
İnşaat Başlangıç Yılı: 2014
İnşaat Bitiş Yılı: 2015
Arsa Alanı: 50,548 m2
Toplam İnşaat Alanı: 192,755 m2