17/22
Paylaş
Resmi Orjinal Boyutunda Göster
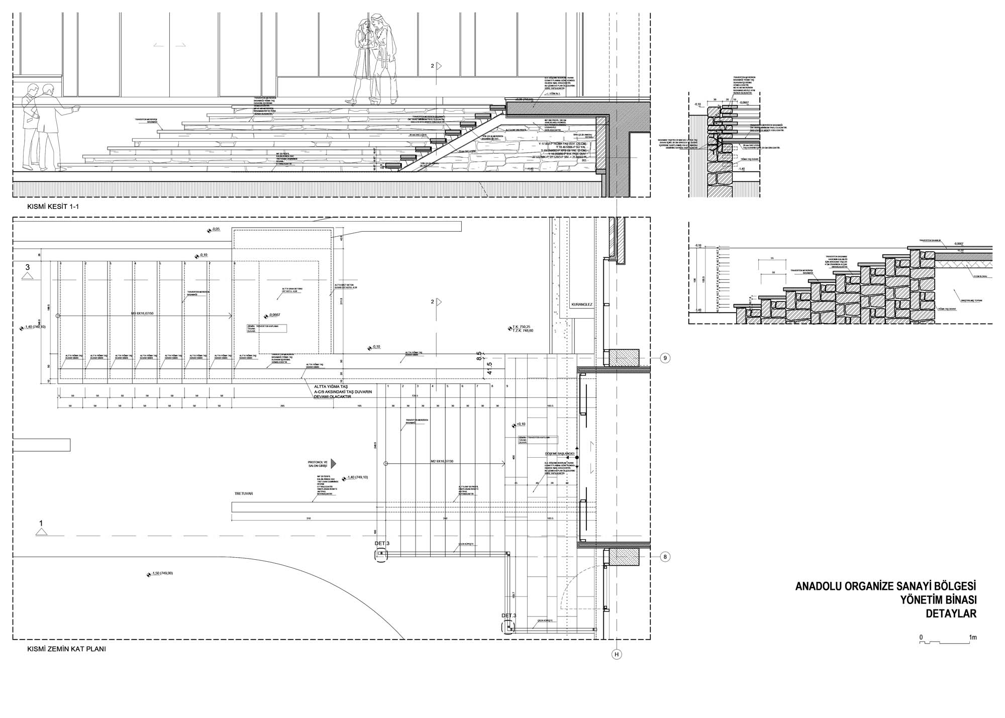
Anadolu Organize Sanayi Bölgesi Yönetim Binası
Proje Yeri: Sincan, Ankara
Proje Tipi: Ofis
Proje Tipi Grubu: Ticari
Tasarım Ekibi: Ayşen Savaş, Onur Yüncü
İşveren: Anadolu Organize Sanayi Bölgesi
Ana Yüklenici: Alp Karasar İnşaat
Peyzaj Mimarlığı: Ayşen Savaş, Onur Yüncü
İç Mekan Projesi: Ayşen Savaş, Ebru Tümer Teke
Konsept Tasarımı: Ayşen Savaş, Onur Yüncü
Uygulama Projesi: Onur Yüncü
Aydınlatma Projesi: Ayşen Savaş
Grafik Tasarım: Onur Yüncü
Statik Projesi: Erka-As Proje Araştırma
Mekanik Projesi: Razgat Mühendislik
Elektrik Projesi: Yurdakul Elektrik
Yangın Tahliye Projesi: Karina Tasarım, Danışmanlık ve Eğitim
Maket: Esatcan Coşkun, Seray Türkay
Fotoğraf: R. Aytül Özkan
Mimari Mesleki Kontrollük: Onur Yüncü, Ayşen Savaş
Proje Başlangıç Yılı: 2012
Proje Bitiş Yılı: 2013
İnşaat Başlangıç Yılı: 2013
İnşaat Bitiş Yılı: 2015
Arsa Alanı: 13,440 m2
Toplam İnşaat Alanı: 2,860 m2