11/11
Paylaş
Resmi Orjinal Boyutunda Göster
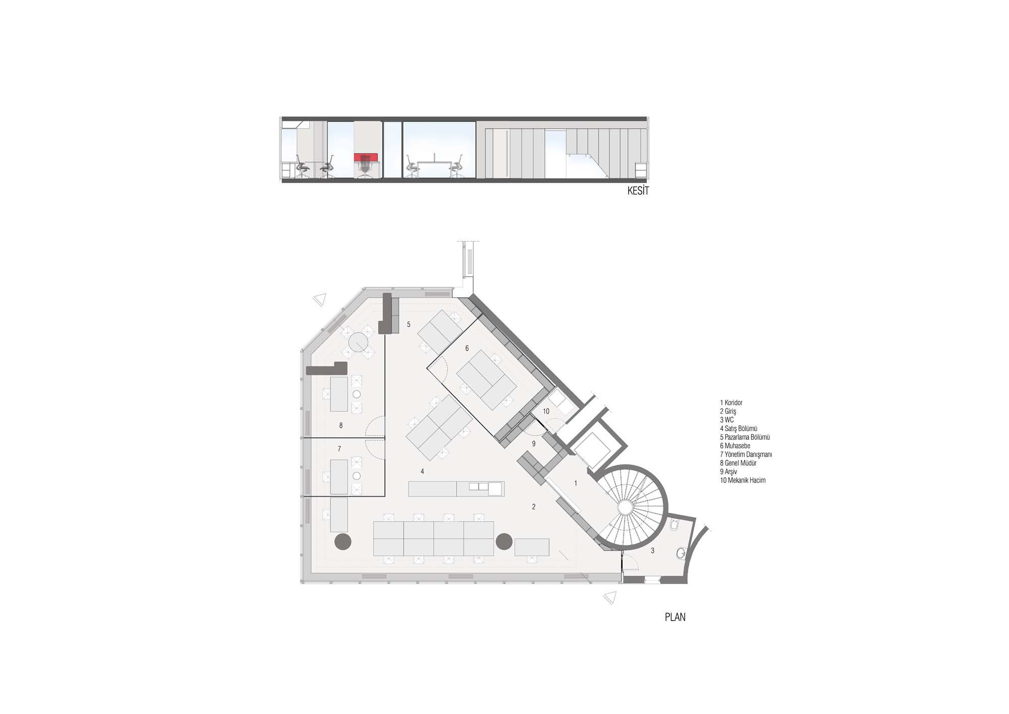
Teknotel 2 Ofis
Proje Yeri: Kozyatağı, İstanbul
Proje Ofisi: EETA (Emir Elmaslar Tasarım Atölyesi)
Proje Tipi: Ofis
Proje Tipi Grubu: Ticari
Tasarım Ekibi: Emir Elmaslar
İşveren: Teknotel Telekomünikasyon
Ana Yüklenici: Teknotel Telekomünikasyon, EETA (Emir Elmaslar Tasarım Atölyesi)
Proje Yöneticisi: Emir Elmaslar
Fotoğraf: Emir Elmaslar
Şantiye Yöneticisi: Hande Korkmaz
Proje Başlangıç Yılı: 2015
Proje Bitiş Yılı: 2015
İnşaat Başlangıç Yılı: 2015
İnşaat Bitiş Yılı: 2015
Toplam İnşaat Alanı: 160 m2