30/40
Paylaş
Resmi Orjinal Boyutunda Göster
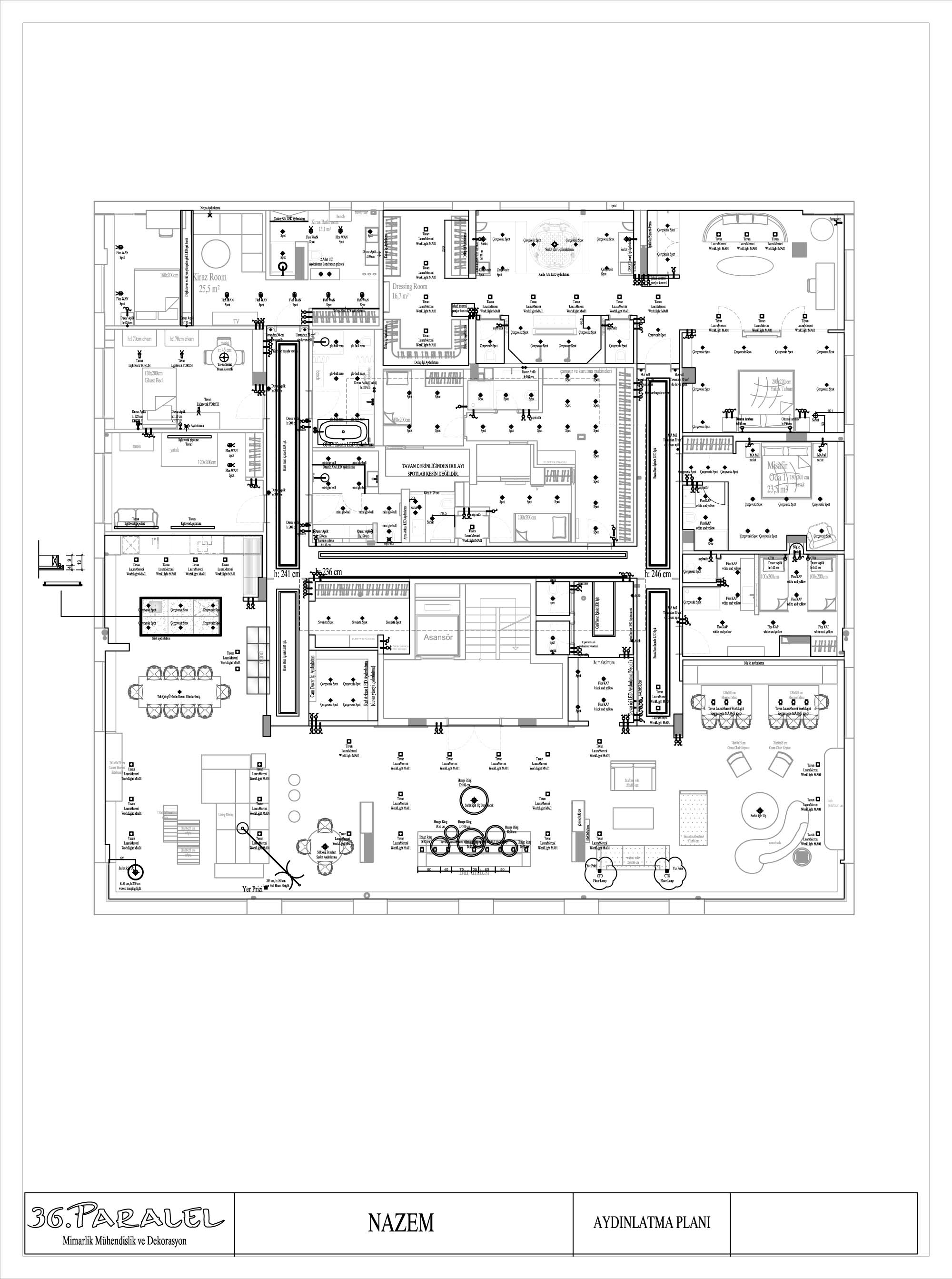
Nişantaşı Daire
Proje Yeri: İstanbul, Şişli, Atelier T+Delight
Proje Ofisi: 36. Paralel Mimarlık ve Mühendislik, Atelier T+Delight
Proje Tipi: Apartman
Proje Tipi Grubu: Konut
Tasarım Ekibi: Soli Kaplanoğlu, Şule Arınç, Mustafa Kemal Özdil, Mesut Kanlı
İşveren: Arınç Gayrimenkul Yatırım
Ana Yüklenici: 36. Paralel Mimarlık ve Mühendislik
Aydınlatma Projesi: 36. Paralel Mimarlık ve Mühendislik, Atelier T+Delight
Elektrik Projesi: 36. Paralel Mimarlık ve Mühendislik
Tesisat Projesi: 36. Paralel Mimarlık ve Mühendislik
Altyapı Projesi: 36. Paralel Mimarlık ve Mühendislik
Mimari Mesleki Kontrollük: 36. Paralel Mimarlık ve Mühendislik
Proje Bitiş Yılı: 2014
İnşaat Başlangıç Yılı: 2014
İnşaat Bitiş Yılı: 2015
Toplam İnşaat Alanı: 640 m²