30/38
Paylaş
Resmi Orjinal Boyutunda Göster
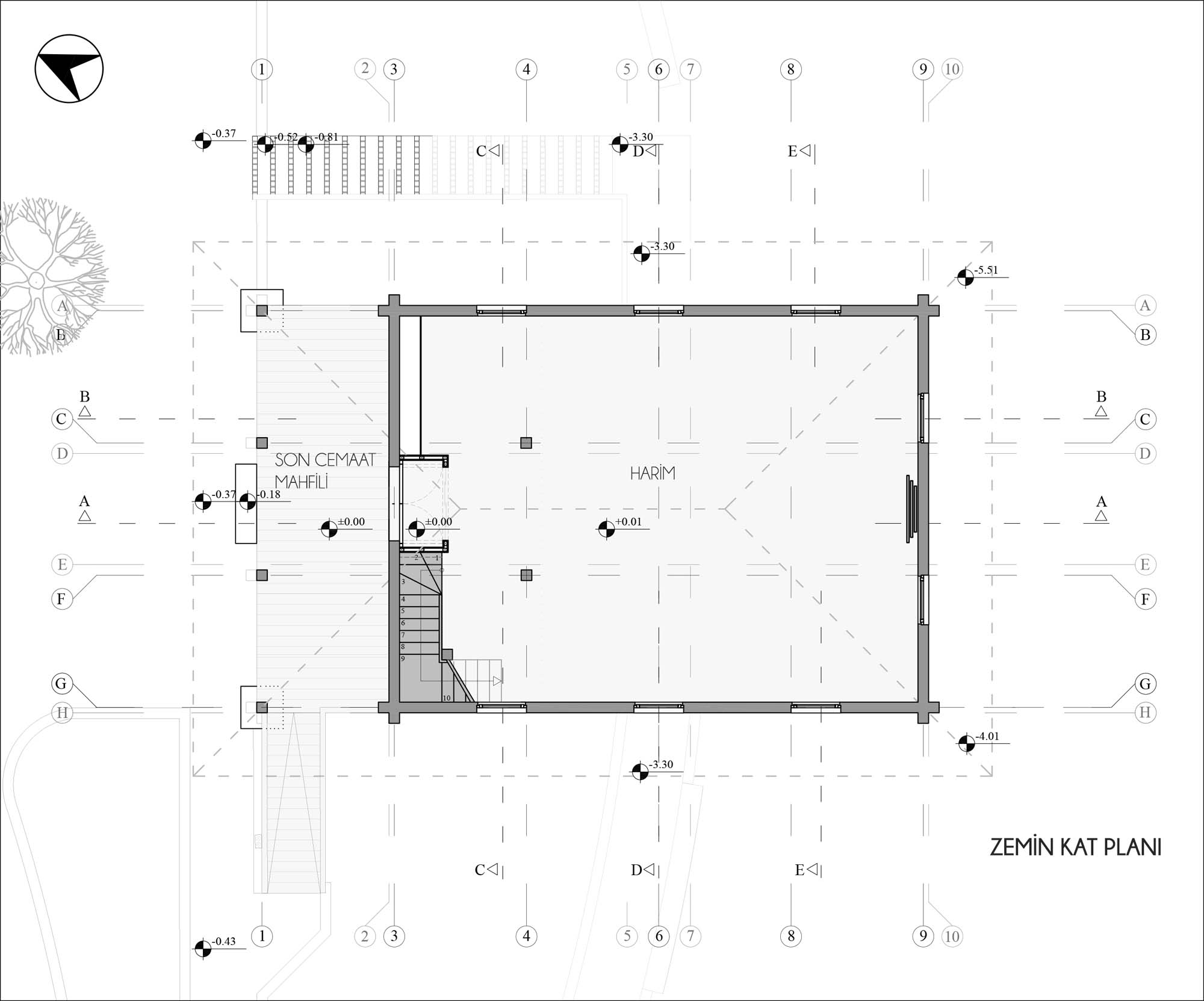
Akçakoca Bey Mescidi
Proje Yeri: Kandıra, Kocaeli (İzmit)
Proje Ofisi: KOOP Mimarlık
Proje Tipi: Cami / Mescit
Proje Tipi Grubu: Dini
Tasarım Ekibi: Yusuf Burak Dolu, Bora Akın
İşveren: Kocaeli Büyükşehir Belediyesi İSU Genel Müdürlüğü
Ana Yüklenici: Balekanlı İnşaat
İç Mekan Projesi: KOOP Mimarlık, Gülnar Ocakdan Architecture (GOA), Yusuf Burak Dolu, Gülnar Ocakdan
Statik Projesi: Fatih Saraçoğlu
Mekanik Projesi: Veli Uysal
Elektrik Projesi: Ali Nail Güçlü
Fotoğraf: Yusuf Burak Dolu, Gülnar Ocakdan
Mimari Mesleki Kontrollük: Yusuf Burak Dolu, Gülnar Ocakdan
Proje Başlangıç Yılı: 2013
Proje Bitiş Yılı: 2014
İnşaat Başlangıç Yılı: 2014
İnşaat Bitiş Yılı: 2015
Arsa Alanı: 35,913 m2
Toplam İnşaat Alanı: 199 m2