44/54
Paylaş
Resmi Orjinal Boyutunda Göster
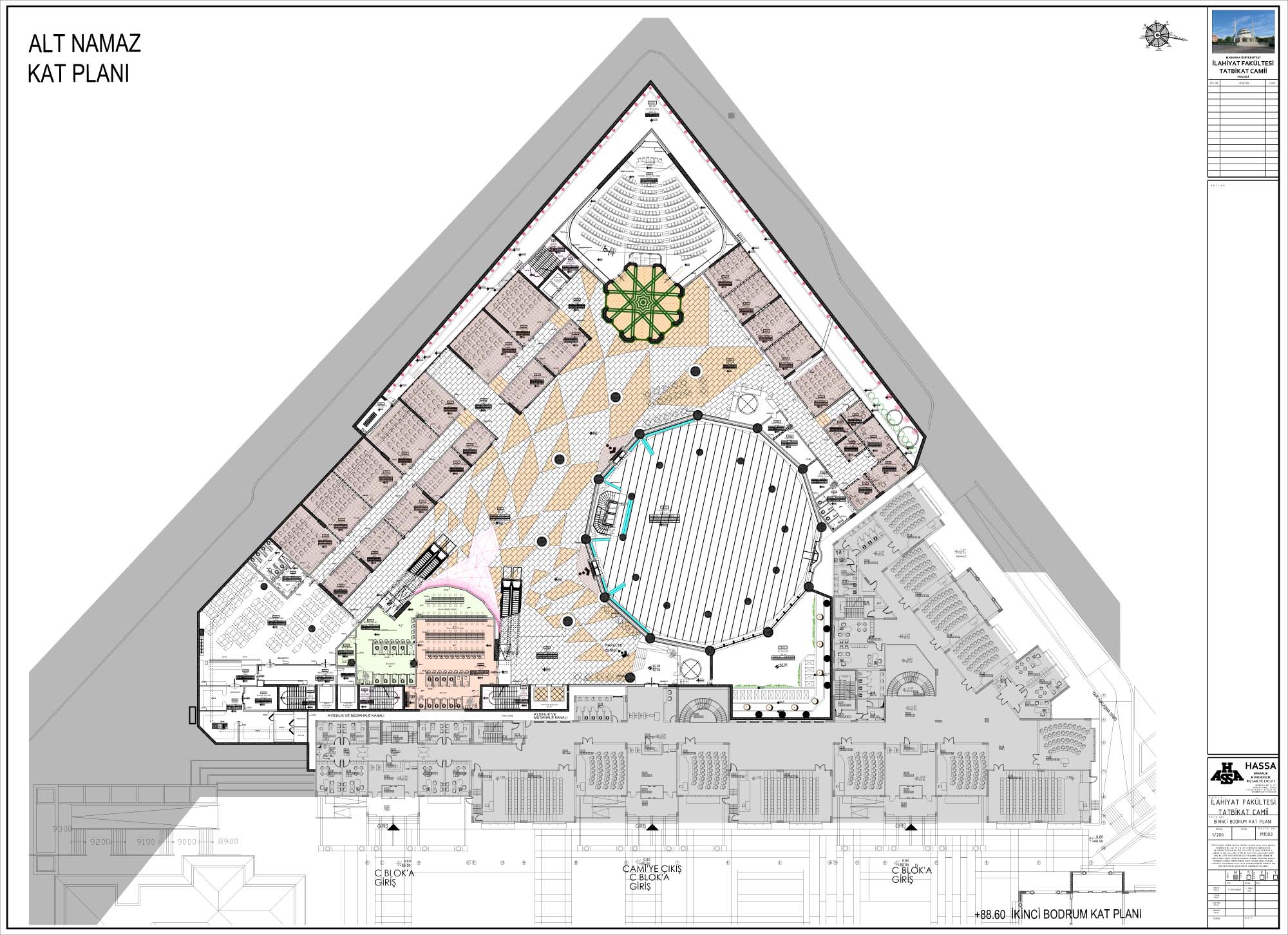
Marmara Üniversitesi İlahiyat Fakültesi Camii ve Kültür Merkezi
Proje Yeri: İstanbul, Üsküdar
Proje Ofisi: Hassa Mimarlık
Proje Tipi: Cami / Mescit
Proje Tipi Grubu: Dini
Tasarım Ekibi: Muharrem Hilmi Şenalp
İşveren: Marmara Üniversitesi İlahiyat Fakültesi Camii Yaptırma ve Yaşatma Derneği
Yardımcı: Mustafa İskender, Büşra Horuz Öztürk, Ömer Okumuş, Ahmet Çandöken
Fotoğraf: Hassa Mimarlık
Proje Başlangıç Yılı: 2011
Proje Bitiş Yılı: 2013
İnşaat Başlangıç Yılı: 2012
İnşaat Bitiş Yılı: 2015
Arsa Alanı: 8,500 m2
Toplam İnşaat Alanı: 30,000 m²