17/23
Paylaş
Resmi Orjinal Boyutunda Göster
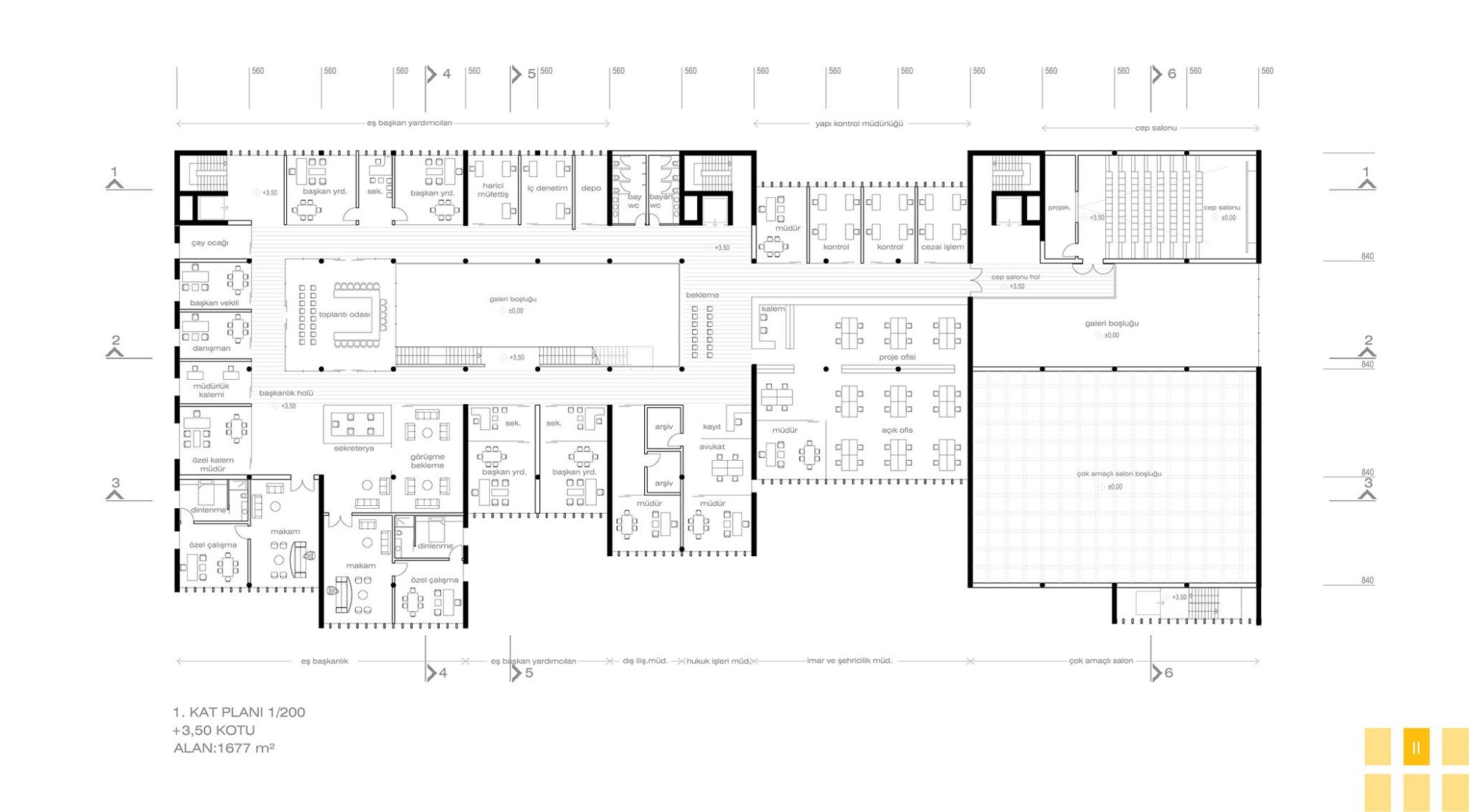
Van İpekyolu Belediye Merkezi Mimari Proje Yarışması - 3. Ödül
Proje Yeri: Van
Proje Ofisi: Kolektif Mimarlar, Buda Mimarlık
Proje Tipi: Belediye Hizmet Binası
Proje Tipi Grubu: 3. Ödül
Tasarım Ekibi: Barış Demir, Sıddık Güvendi, Burak Pelenk
Yardımcı: Soyer Bayraktar, Dilara Demiralp, Damla İçyer, Oğulcan Demirgan