12/30
Paylaş
Resmi Orjinal Boyutunda Göster
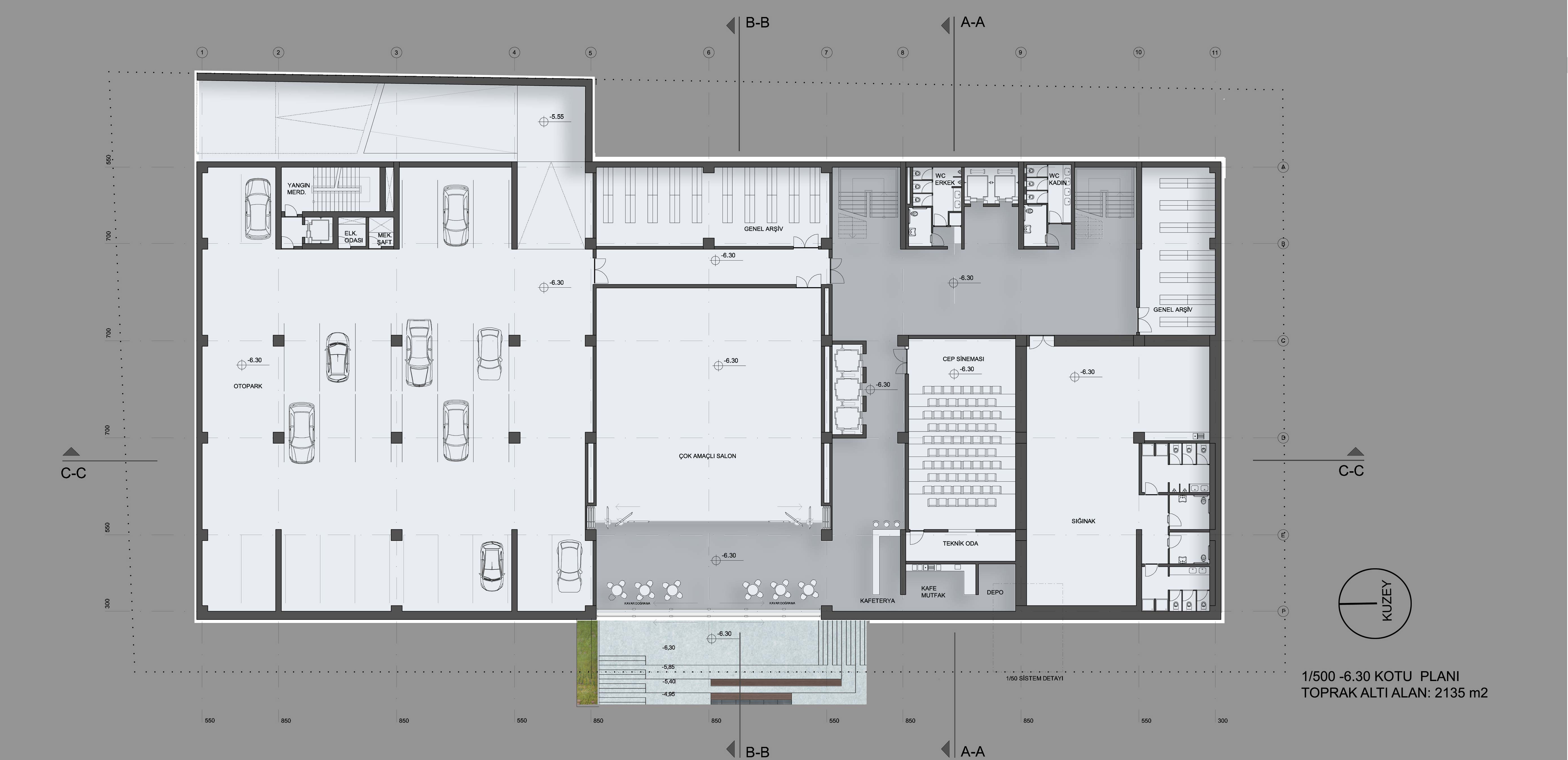
2. Mansiyon
Proje Yeri: Van
Proje Tipi: Belediye Hizmet Binası
Proje Tipi Grubu: 2. Mansiyon
Tasarım Ekibi: Gürkan Okta, Birge Yıldırım Okta, Zeynep Ataş, Osman Sümer
Danışman: Volkan Okta, Hakan Çatalkaya, Meltem Erdem Kaya, Altuğ Tosun