19/24
Paylaş
Resmi Orjinal Boyutunda Göster
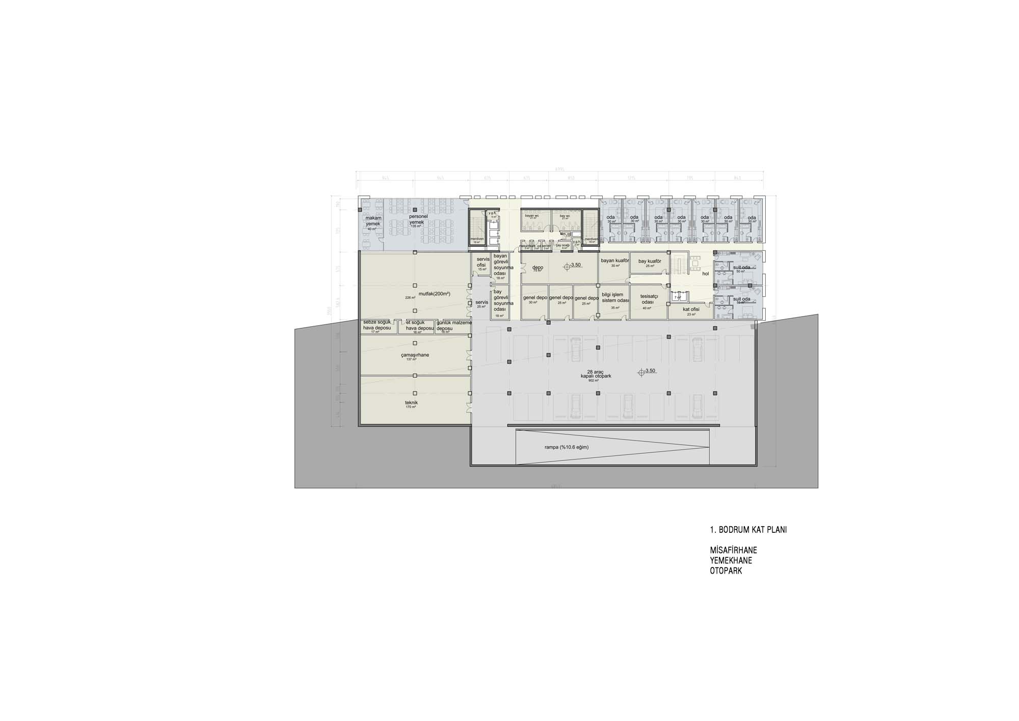
İLBANK AŞ İstanbul Bölge Müdürlüğü Yeni İdare Binası
Proje Yeri: Ataşehir, İstanbul
Proje Ofisi: Öncüoğlu + ACP Mimarlık Şehircilik
Proje Tipi: Ofis
Proje Tipi Grubu: Ticari
Tasarım Ekibi: Enis Öncüoğlu, Önder Kaya, Cem Altınöz
İşveren: İller Bankası (İLBANK AŞ)
Yardımcı: Özge Selen Duran, Özge Özden, Evrim Kale, Dilek Vergin, Tuna Şentuna, Arzu Gençaslan, Şúle Yazıcı, Mustafa Öztürk
Proje Başlangıç Yılı: 2012
Proje Bitiş Yılı: 2014
İnşaat Bitiş Yılı: 2014
Arsa Alanı: 5,000 m²
Toplam İnşaat Alanı: 12,600 m²