14/19
Paylaş
Resmi Orjinal Boyutunda Göster
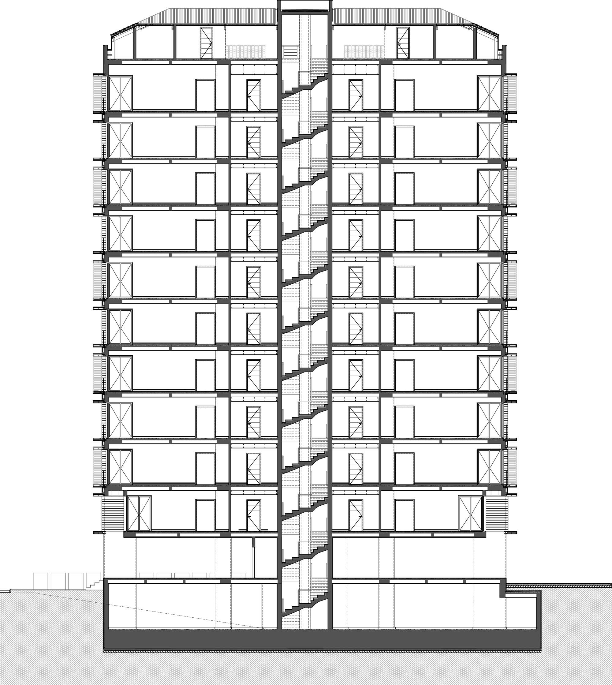
Arklife
Proje Yeri: Göztepe, İstanbul
Proje Ofisi: arkiZON Mimarlık
Proje Tipi: Apartman
Proje Tipi Grubu: Konut
Tasarım Ekibi: Emin Balkış, Elvan Çalışkan
İşveren: Arkkon Yapı Mühendislik
Yardımcı: Elif Erkmen, Bahar Nama, Elvan Arıker
Ana Yüklenici: Arkkon Yapı Mühendislik
Proje Yöneticisi: Taner Orhon
Fotoğraf: Ömer Kanıpak, Orhan Kolukısa, Yercekim Mimari Fotograf
Proje Başlangıç Yılı: 2013
Proje Bitiş Yılı: 2014
İnşaat Başlangıç Yılı: 2014
İnşaat Bitiş Yılı: 2015