25/28
Paylaş
Resmi Orjinal Boyutunda Göster
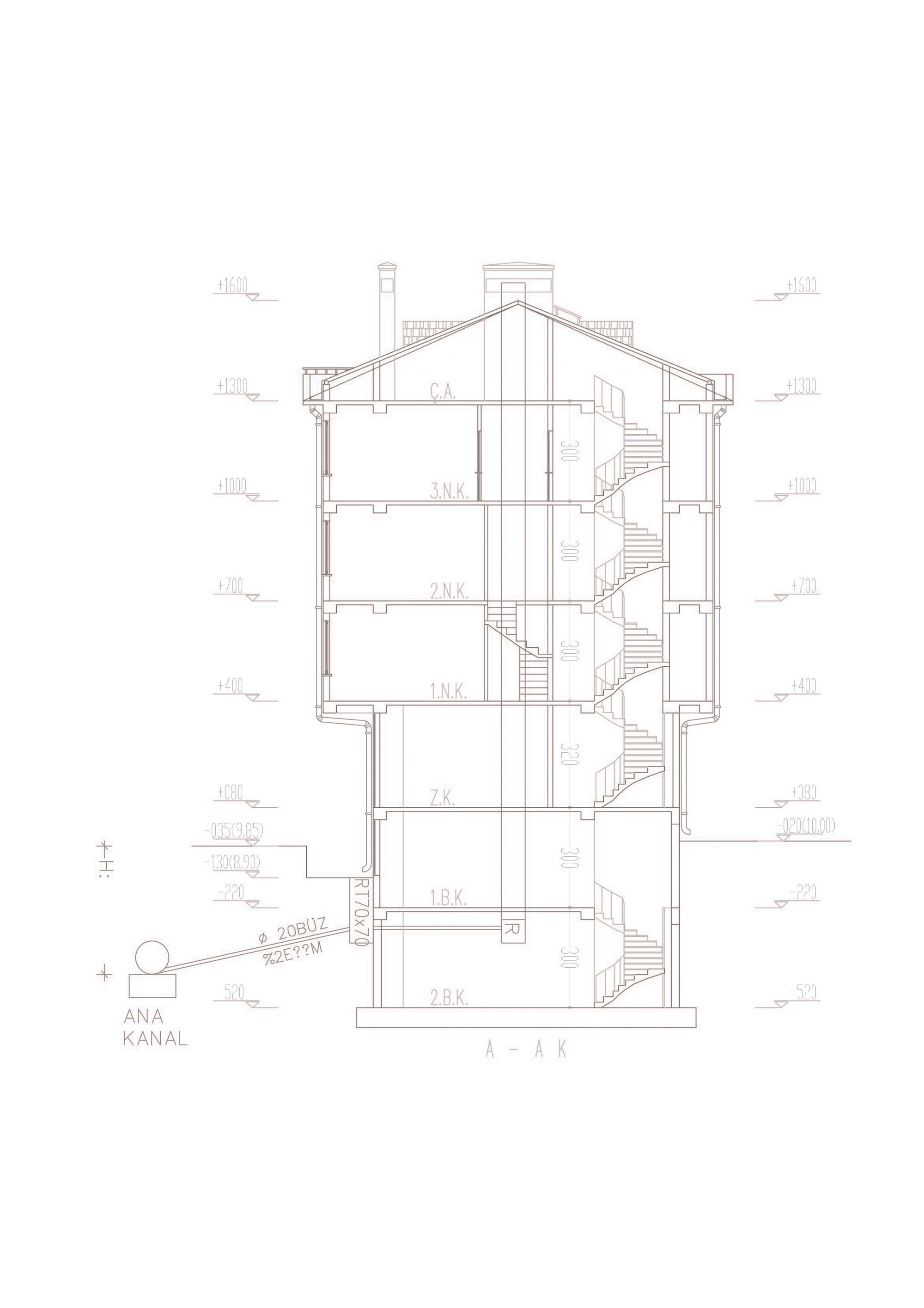
Menar 65
Project Location: Avcılar, İstanbul
Project Office: Yüksel Öztürk Mimarlık Bürosu
Project Type: Apartment
Proje Tipi Grubu: Konut
Tasarım Ekibi: Yüksel Öztürk
Ana Yüklenici: Menar Yapı
Structural Project: Grup Statik
Mechanical Project: Ae Mekanik
Electrical Project: Ae Mekanik
Altyapı Projesi: Ae Mekanik
Photography: Yüksel Öztürk
Architectural Supervision: Yüksel Öztürk
Construction Site Manager: Fatih Özyalçın
Project Start Date: 2015
Project End Date: 2015
Construction Start Date: 2015
Construction End Date: 2015
Building Plot Area: 375 m²
Total Construction Area: 1,400 m²