16/25
Paylaş
Resmi Orjinal Boyutunda Göster
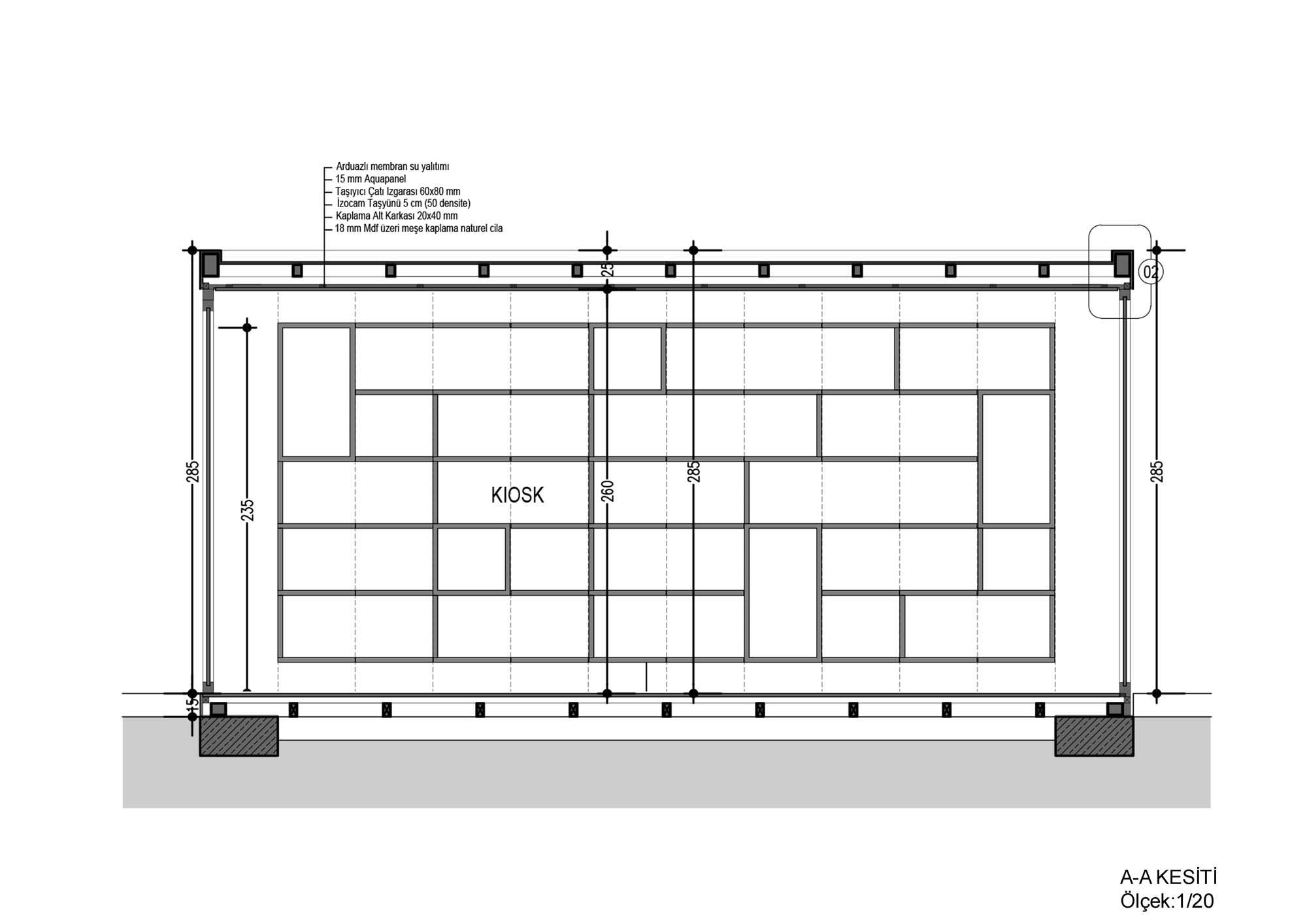
Cumhuriyet Caddesi Kiosk Yapısı
Proje Yeri: Beylikdüzü, İstanbul
Proje Ofisi: PDG Mimarlar
Proje Tipi: Park
Proje Tipi Grubu: Kentsel Tasarım
Tasarım Ekibi: Cengiz Gültek, Murat Şahin
İşveren: Beylikdüzü Belediyesi
Yardımcı: Soner Bilgin, Arzu Çetingöz, Öykü Höbek Doğan, Nihan Gül, Çiğdem Nur Kebapcı, F.Rabia Ecevit Pala, Tuğba Özaşır, Selda Süzgün, Nur Bilgin, Buket Altıntaş, Mustafa Önal, Vladimir Kalmik
Ana Yüklenici: PDG Mimarlar, Loop Mimarlık
Peyzaj Mimarlığı: PDG Mimarlar
İç Mekan Projesi: PDG Mimarlar
Proje Yöneticisi: Fırat Çoban
Konsept Tasarımı: PDG Mimarlar
Uygulama Projesi: PDG Mimarlar
Statik Projesi: Ömer Dabanlı
Mekanik Projesi: Beylikdüzü Belediyesi
Elektrik Projesi: Beylikdüzü Belediyesi
Tesisat Projesi: Beylikdüzü Belediyesi
Çelik Projesi: Ömer Dabanlı, Serkan Yılmaz
Altyapı Projesi: Beylikdüzü Belediyesi
Maket: Barış Saraç
Fotoğraf: Ömer Yüce
Mimari Mesleki Kontrollük: PDG Mimarlar
Şantiye Yöneticisi: Ali Eşber Coşkun, Loop Mimarlık
Proje Başlangıç Yılı: 2015
Proje Bitiş Yılı: 2015
İnşaat Başlangıç Yılı: 2015
İnşaat Bitiş Yılı: 2015
Arsa Alanı: 3,000 m²
Toplam İnşaat Alanı: 18 m²