33/35
Paylaş
Resmi Orjinal Boyutunda Göster
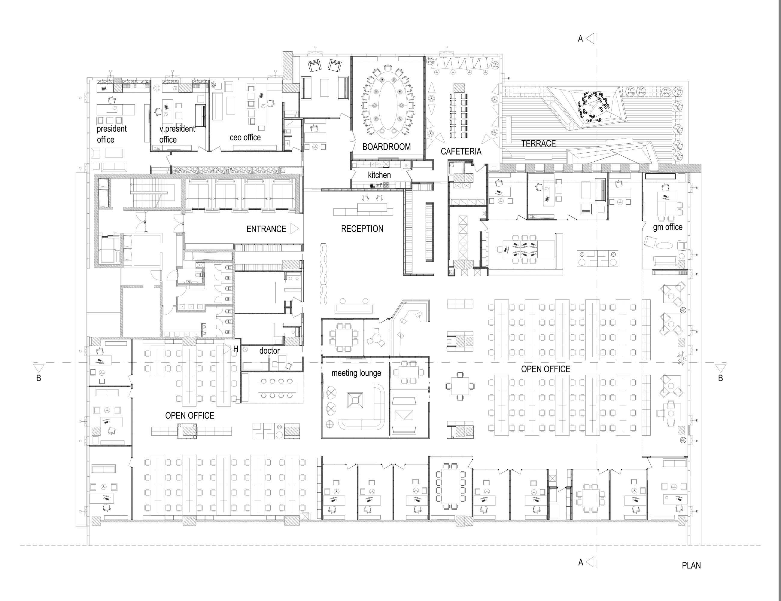
Derindere Ofisi İç Mekan Projesi
Proje Yeri: Kağıthane, İstanbul
Proje Ofisi: TeamFores
Proje Tipi: Ofis
Proje Tipi Grubu: Ticari
Tasarım Ekibi: Serter Karataban, Ceyhun Akın, Ceyda Atıcı
İşveren: Derindere Filo Kiralama
Yardımcı: Fidan Eray, Eray Işıksal, Murat Özbay, Bahri Zavalsız, Pelin Sınmaz
Ana Yüklenici: TeamFores
Peyzaj Mimarlığı: Hande Aydıngün Peyzaj Tasarım Uygulama ve Danışmanlık
Aydınlatma Projesi: Paralel Aydınlatma
Mekanik Projesi: Ekon Mühendislik
Elektrik Projesi: Çaba Elektrik
Akustik Danışmanı: Talayman Akustik
Fotoğraf: Mehmet İnce
Proje Başlangıç Yılı: 2013
Proje Bitiş Yılı: 2013
İnşaat Başlangıç Yılı: 2013
İnşaat Bitiş Yılı: 2015
Toplam İnşaat Alanı: 2.150 m²