17/21
Paylaş
Resmi Orjinal Boyutunda Göster
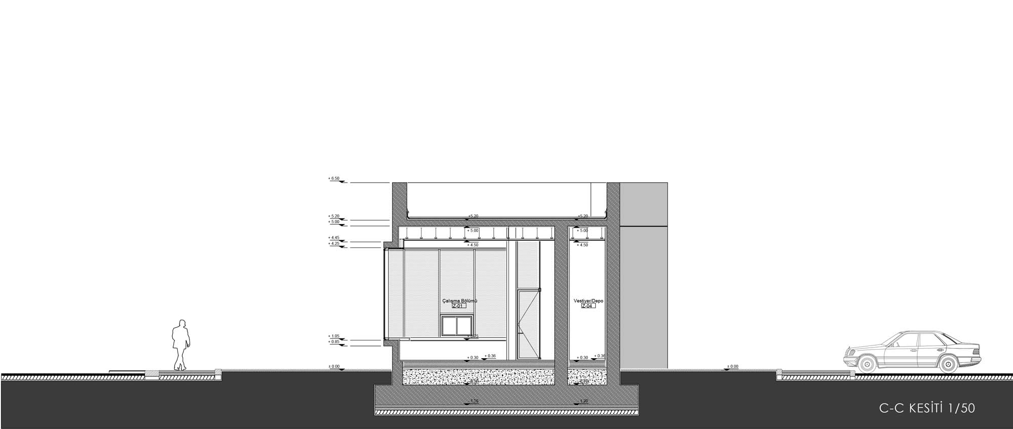
Dokuz Eylül Üniversitesi Tınaztepe Yerleşkesi Doğu Kapısı
Project Location: İzmir, Buca
Project Type: Gate
Proje Tipi Grubu: Ulaşım
Tasarım Ekibi: Ferhat Hacıalibeyoğlu, Deniz Dokgöz, Halil İbrahim Alpaslan
Employer: Dokuz Eylül Üniversitesi Rektörlüğü Yapı İşleri Daire Başkanlığı
Consultant: Orhan Ersan
Yardımcı: Turgut Şakiroğlu, Gülcan Afacan
Ana Yüklenici: Nilgün Özkan İnşaat
Projcet Manager: DEÜ Yapı İşleri Daire Başkanlığı
Structural Project: Necati Atıcı
Mechanical Project: Ufuk Yılmaz İpekoğlu
Electrical Project: Mehmet Şener
Photography: Emre TUNCER
Project Start Date: 2014
Project End Date: 2014
Construction Start Date: 2015
Construction End Date: 2015
Building Plot Area: 800 m2
Total Construction Area: 240 m²