59/67
Paylaş
Resmi Orjinal Boyutunda Göster
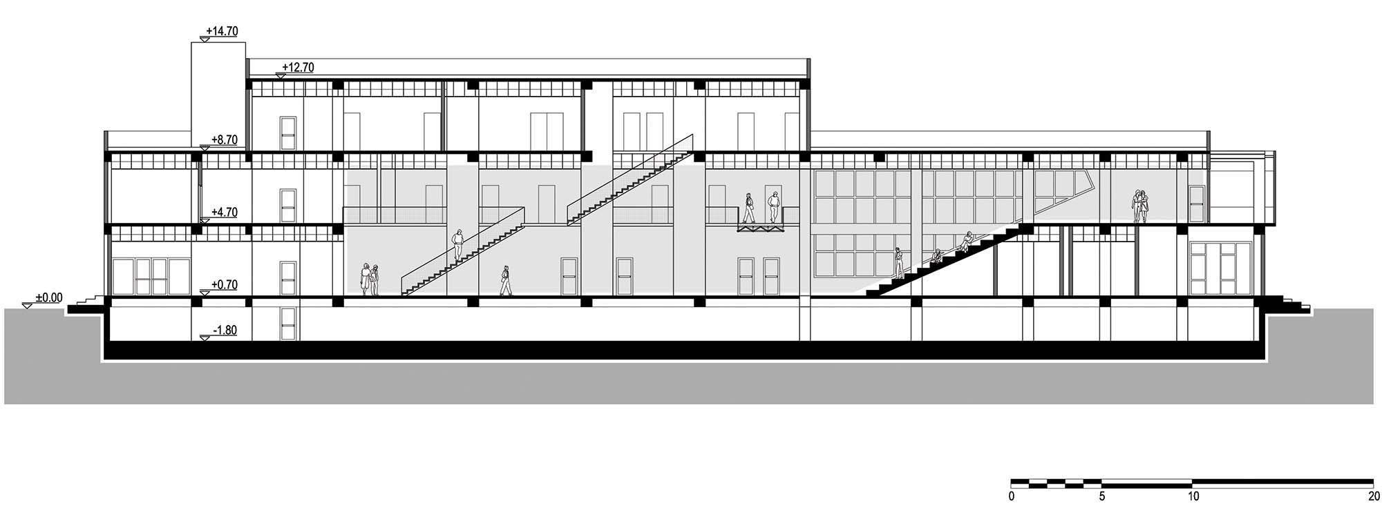
Gebze Teknik Üniversitesi Mimarlık Bölümü
Proje Yeri: Gebze, Kocaeli (İzmit)
Proje Tipi: Yüksek Öğretim Yapısı
Proje Tipi Grubu: Eğitim
Tasarım Ekibi: Ayla Ayyıldız Potur, Kutlu Sevinç Kayıhan, Cahide Aydın İpekçi, Göksun Akyürek Altürk, Ümit Ceren Bayazitoğlu, Nurşah Serter, Buket Metin
Yardımcı: Şebnem Çakaloğulları, Özlem Zeybek
Ana Yüklenici: ​Gürbüz İnşaat
Statik Projesi: Ferhat Pakdamar, Turan Durmuşoğlu
Fotoğraf: Bilimsel Taş, İsmi Durmuş, Zahide Ağırel, Ayla Ayyıldız Potur, Cahide Aydın İpekçi, Şebnem Çakaloğulları, Nilay Coşgun, Nurşah Serter
Mimari Mesleki Kontrollük: GTÜ Yapı İşleri ve Teknik Daire Başkanlığı
Proje Başlangıç Yılı: 2011
Proje Bitiş Yılı: 2011
İnşaat Başlangıç Yılı: 2014
İnşaat Bitiş Yılı: 2015
Arsa Alanı: 1,482 m²
Toplam İnşaat Alanı: 4,982 m²