8/16
Paylaş
Resmi Orjinal Boyutunda Göster
Katılmcı (GOA)
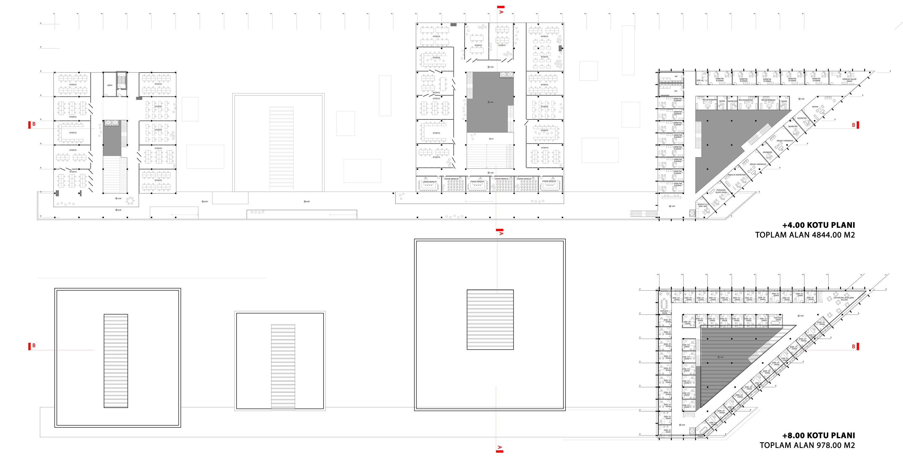
Proje Yeri: Pamukkale, Denizli
Proje Ofisi: Gülnar Ocakdan Architecture (GOA)
Proje Tipi: Yüksek Öğretim Yapısı
Proje Tipi Grubu: Katılımcı
Tasarım Ekibi: Nurgül Yardım, Gülnar Ocakdan
Yardımcı: Ali İbiş, İhsan Metin, Zeynep Akgül, Melda Özlem Dirgin, Meltem Yalçın