17/18
Paylaş
Resmi Orjinal Boyutunda Göster
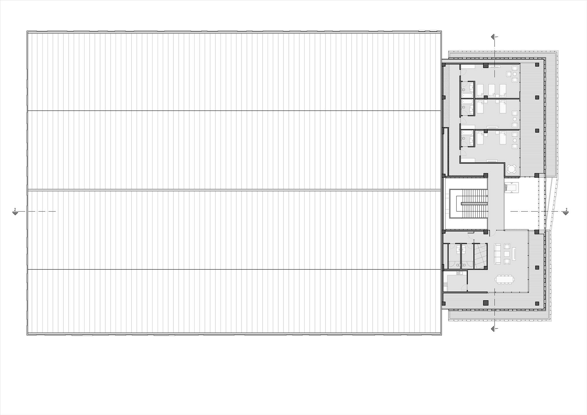
Greyder Ayakkabı Fabrikası
Proje Yeri: Çorum
Proje Ofisi: CAA Studio
Proje Tipi: Fabrika
Proje Tipi Grubu: Endüstriyel
Tasarım Ekibi: Alişan Çırakoğlu, Ilgın Avcı, Deniz Yazıcı, Merve Gül Özokçu, Oya Esen, Batuhan Kumru
İşveren: Kavsan AŞ
Ana Yüklenici: Kavsan AŞ
Fotoğraf: Cemal Emden
Proje Başlangıç Yılı: 2014
Proje Bitiş Yılı: 2015
İnşaat Başlangıç Yılı: 2015
İnşaat Bitiş Yılı: 2015
Arsa Alanı: 4,665 m²
Toplam İnşaat Alanı: 7,050 m²