25/25
Paylaş
Resmi Orjinal Boyutunda Göster
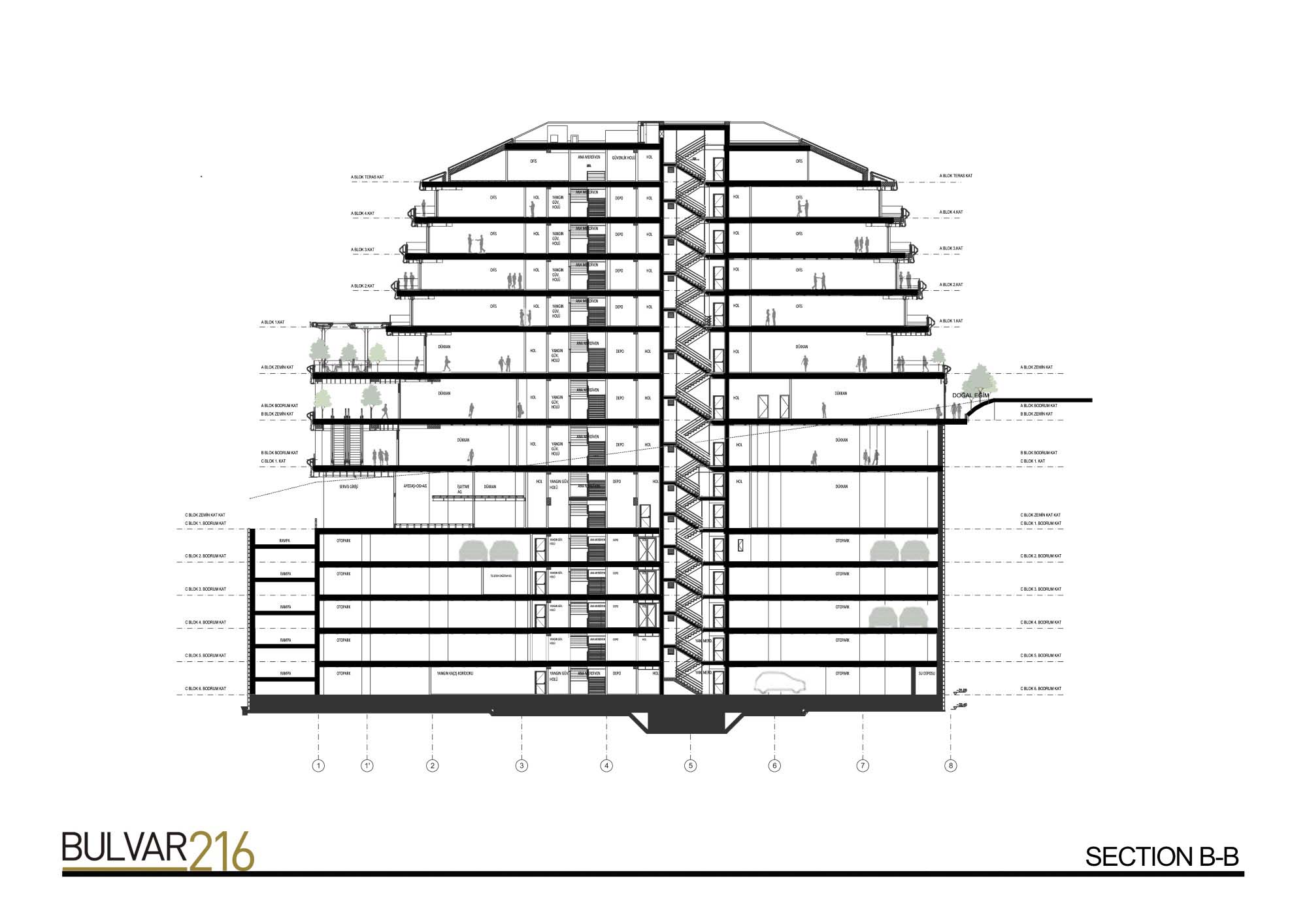
Bulvar 216
Proje Yeri: İstanbul, Ataşehir
Proje Ofisi: TAGO Mimarlık
Proje Tipi: Ofis
Tasarım Ekibi: Gökhan Aktan Altuğ, Mevlüt Duymaz, Müge Eker Eryayar, Deniz Düvenci, Hakan Özbek, Kezban Taş
İşveren: ÖZAK GYO
Ana Yüklenici: İnter Yapı
Proje Başlangıç Yılı: 2013
Proje Bitiş Yılı: 2014
İnşaat Başlangıç Yılı: 2014
İnşaat Bitiş Yılı: 2015
Arsa Alanı: 5,874 m2
Toplam İnşaat Alanı: 46,000 m²