21/21
Paylaş
Resmi Orjinal Boyutunda Göster
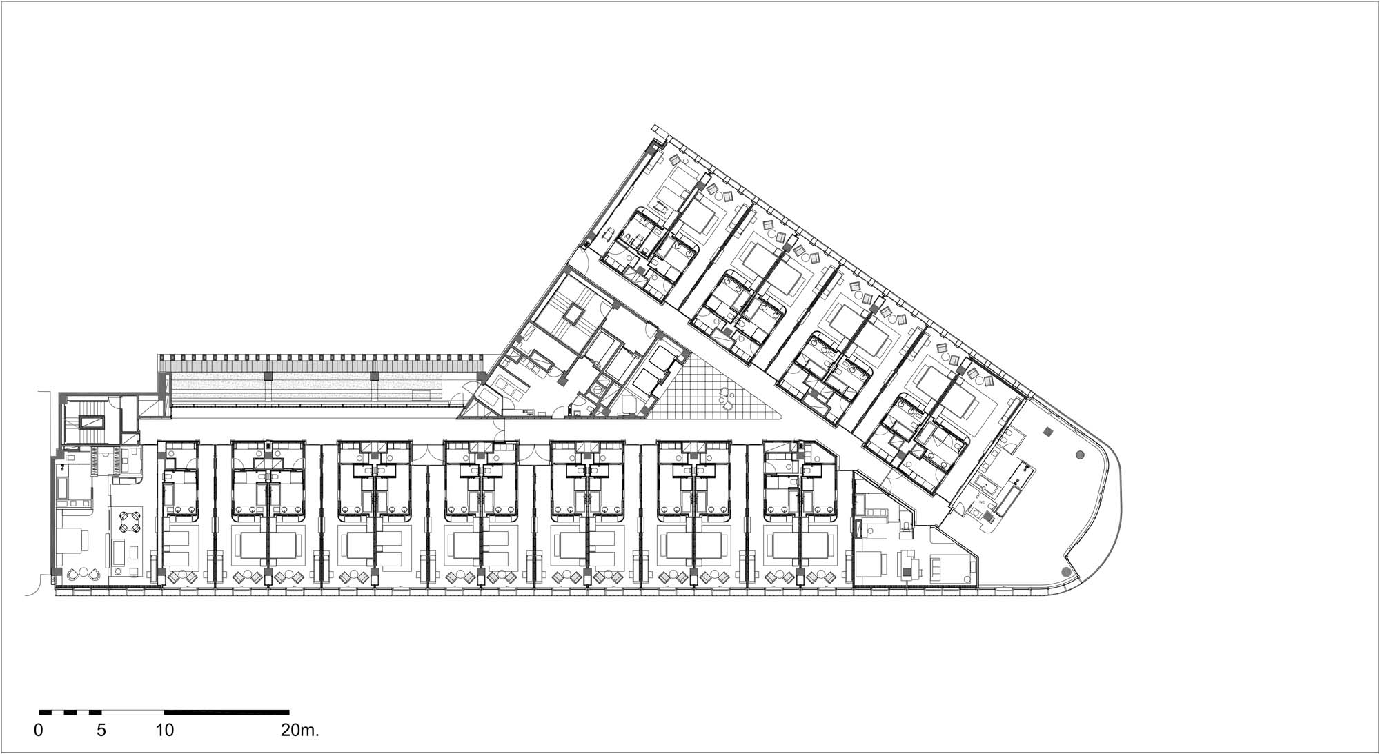
St Regis İstanbul Hotel
Proje Yeri: İstanbul, Şişli
Proje Ofisi: EAA-Emre Arolat Architecture
Proje Tipi: Otel / Motel
Proje Tipi Grubu: Konaklama
Fotoğraf: Cemal Emden
Proje Başlangıç Yılı: 2010
İnşaat Bitiş Yılı: 2015
Toplam İnşaat Alanı: 25,000 m2