23/26
Paylaş
Resmi Orjinal Boyutunda Göster
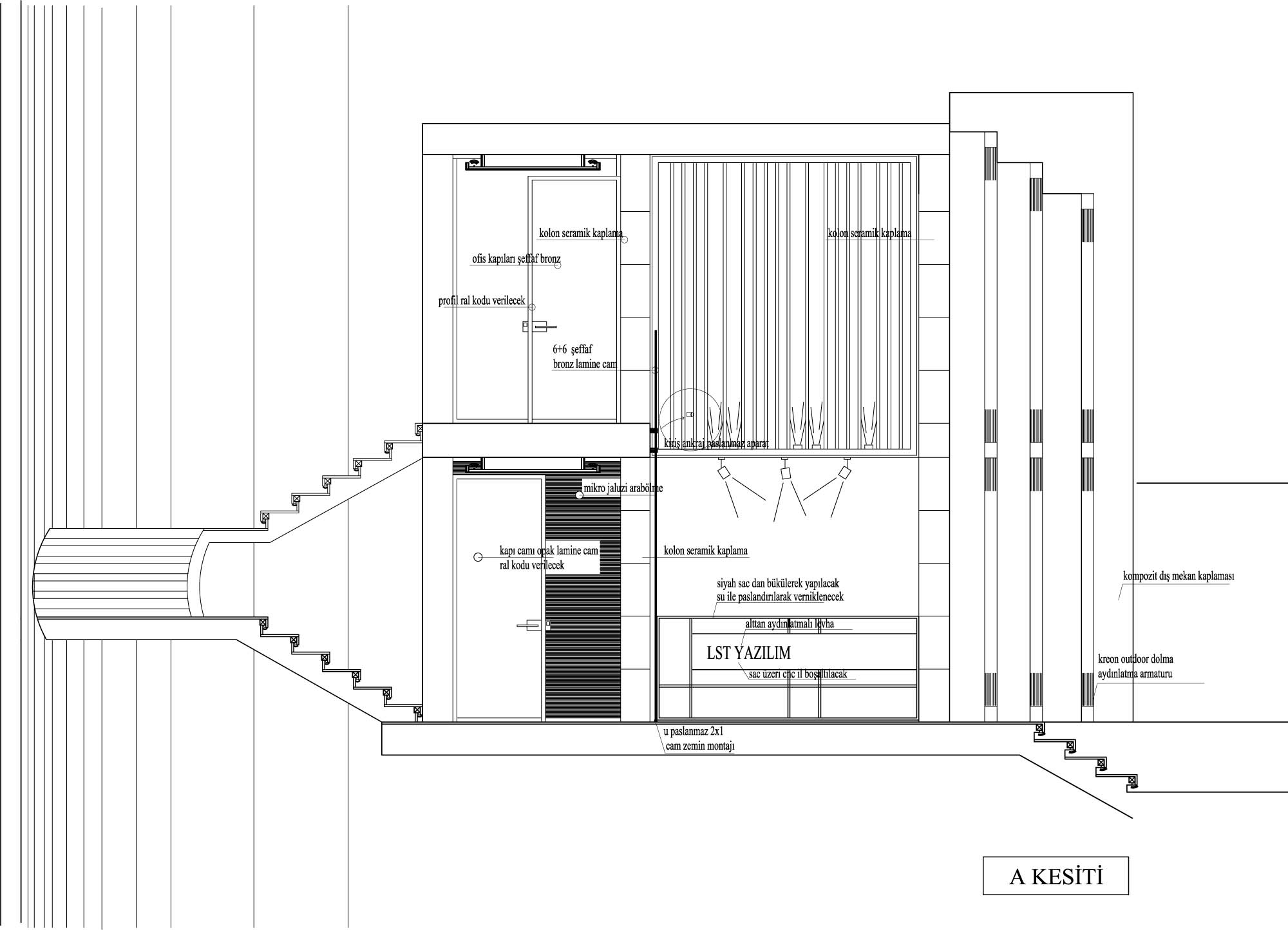
Locksmith Software Technologies Ofisi
Proje Yeri: Çankaya, Ankara
Proje Ofisi: İki Derece Mimarlık
Proje Tipi: Ofis
Proje Tipi Grubu: Ticari
Tasarım Ekibi: Yaman Pamukcu, Erkan Erarslan
İşveren: Locksmith Software Technologies
Ana Yüklenici: Ömerler İnşaat
Fotoğraf: Fethi Mağara
Proje Başlangıç Yılı: 2015
Proje Bitiş Yılı: 2015
İnşaat Başlangıç Yılı: 2015
İnşaat Bitiş Yılı: 2015
Toplam İnşaat Alanı: 1,500 m2