20/24
Paylaş
Resmi Orjinal Boyutunda Göster
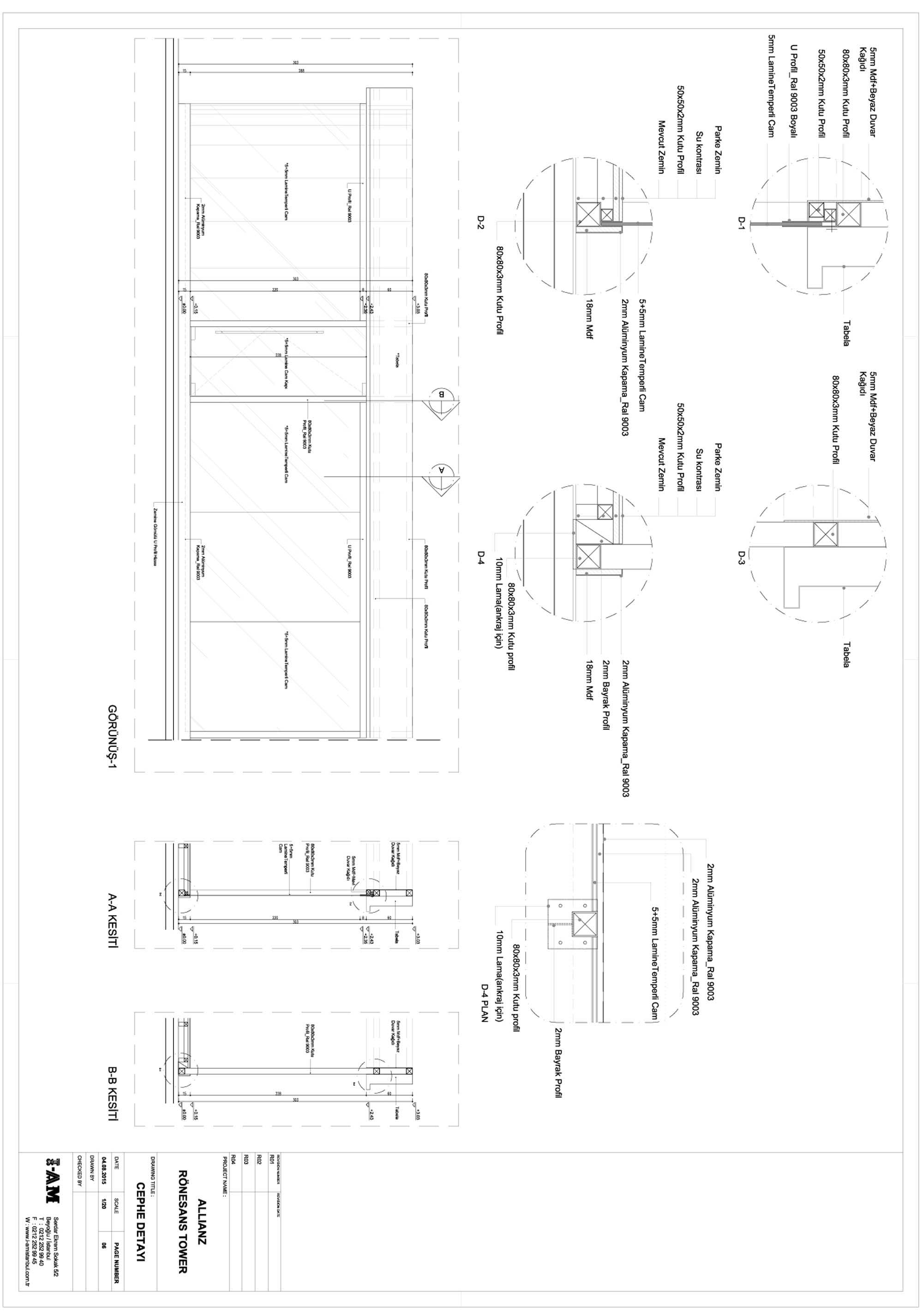
Allianz Dijital Model Acente Tasarımı
Proje Yeri: Ataşehir, İstanbul
Proje Ofisi: I-AM
Proje Tipi: Ofis
Proje Tipi Grubu: Ticari
Tasarım Ekibi: Ertuğrul Yurdakul, Pınar Ünlü, Gülden Ardıç, Şevket Öztaş, Vural Armutçuoğlu
Yardımcı: Ece Kurtboğan, Gözde Yılmaz, İlknur Demirlenk, Orhan Ercan
Ana Yüklenici: I-AM
Proje Yöneticisi: Ertuğrul Yurdakul, Emre Kuzlu, Duygu Gökbulut
Uygulama Projesi: Sedef Şener, Selami Bingöl, Tuğçe Dadandı, Cafer Corcor
Maket: I-AM
Fotoğraf: İbrahim Özbunar
Mimari Mesleki Kontrollük: I-AM
Şantiye Yöneticisi: Selami Bingöl
Proje Başlangıç Yılı: 2015
Proje Bitiş Yılı: 2015
İnşaat Başlangıç Yılı: 2015
İnşaat Bitiş Yılı: 2015
Arsa Alanı: 70 m2
Toplam İnşaat Alanı: 70 m2