16/18
Paylaş
Resmi Orjinal Boyutunda Göster
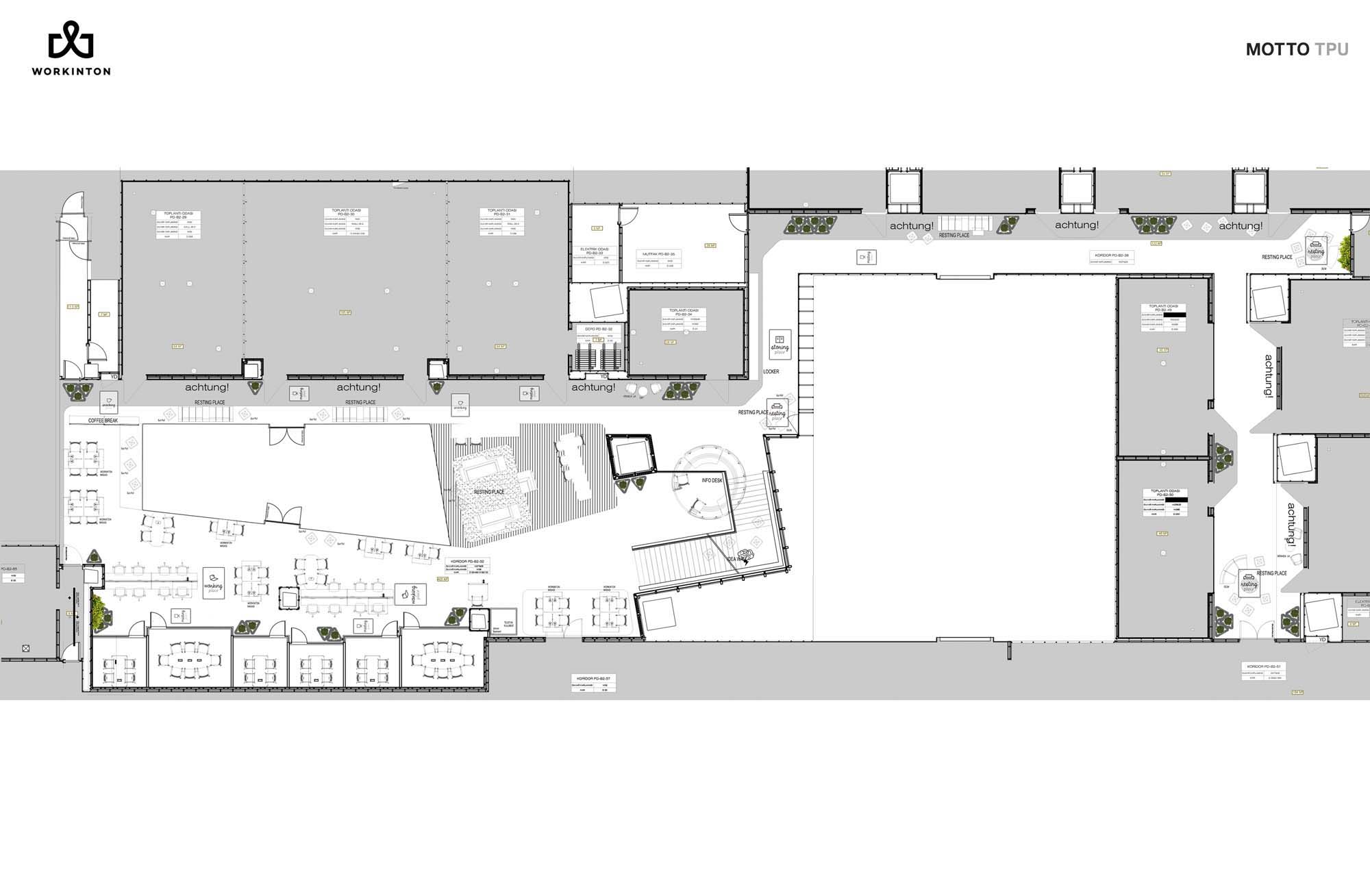
Workinton Levent 199
Proje Yeri: Şişli, İstanbul
Proje Ofisi: EOX Mimarlık
Proje Tipi: Ofis
Proje Tipi Grubu: Ticari
Tasarım Ekibi: Burak Koltukoğlu
İşveren: Workinton
Danışman: Pınar Şahbazoğlu
Yardımcı: Anıl Salar, Elif Özgür Koltukoğlu, Gökhan Kıyıcı, Saygın Deren
Ana Yüklenici: EOX Mimarlık
Aydınlatma Projesi: Etik ve Teknik
Grafik Tasarım: Federation
Mekanik Projesi: Eksioğlu Ema
Elektrik Projesi: Timsan Mühendislik
Şantiye Yöneticisi: Anıl Salar
Proje Başlangıç Yılı: 2015
Proje Bitiş Yılı: 2015
İnşaat Başlangıç Yılı: 2015
İnşaat Bitiş Yılı: 2015
Toplam İnşaat Alanı: 2,700 m²