3/4
Paylaş
Resmi Orjinal Boyutunda Göster
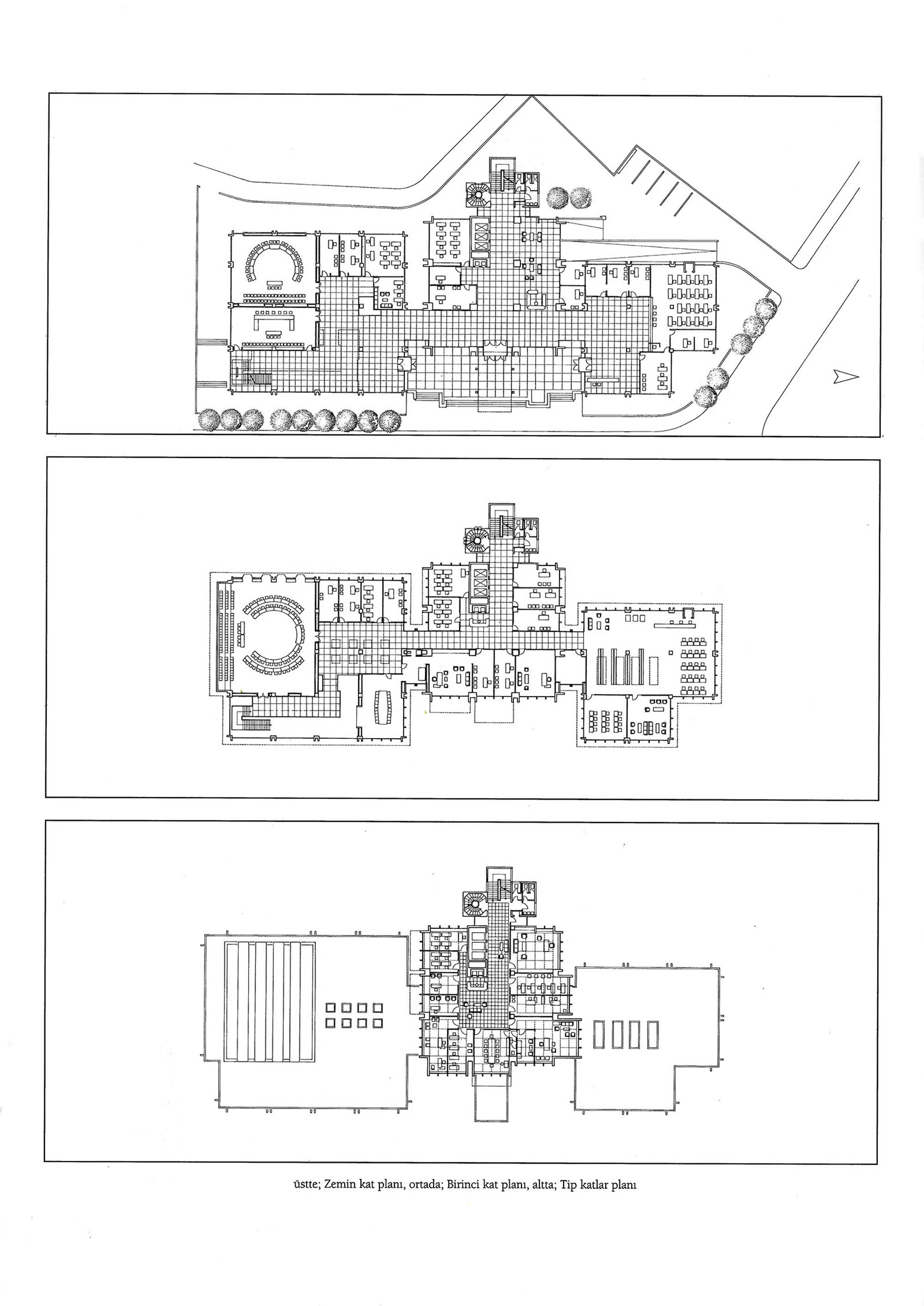
Danıştay Binası
Proje Yeri: Ankara, Çankaya
Proje Ofisi: Tekeli-Sisa Mimarlık Ortaklığı
Proje Tipi: Kamu Yönetim Binası
Proje Tipi Grubu: Kamu
Tasarım Ekibi: Doğan Tekeli, Sami Sisa
İşveren: Danıştay Başkanlığı
Proje Başlangıç Yılı: 1967
Proje Bitiş Yılı: 1967
İnşaat Başlangıç Yılı: 1969
İnşaat Bitiş Yılı: 1978