28/29
Paylaş
Resmi Orjinal Boyutunda Göster
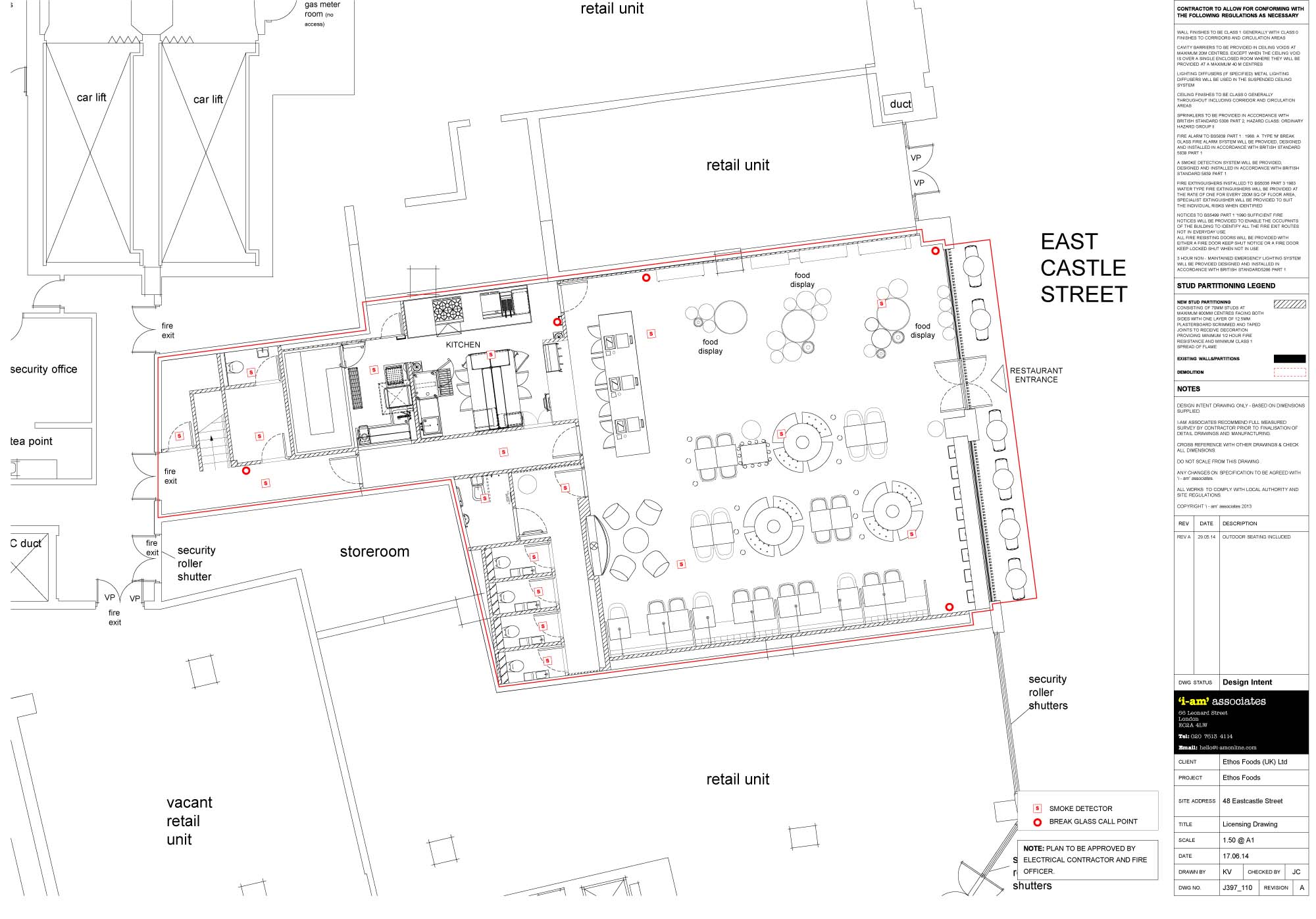
Ethos Foods
Proje Yeri: Londra
Proje Ofisi: I-AM
Proje Tipi: Restoran / Kafe / Bar
Proje Tipi Grubu: Ticari
Tasarım Ekibi: Emre Kuzlu, Jon Blakeney, James Coates, Kirsty Vance, Nick Wills, Ben Russell
İşveren: Ethos Foods
Ana Yüklenici: Ridgeway
Proje Yöneticisi: Jen Kuhn, Alison Anderson
Fotoğraf: I-AM
Proje Başlangıç Yılı: 2013
Proje Bitiş Yılı: 2014
İnşaat Başlangıç Yılı: 2014
İnşaat Bitiş Yılı: 2014
Arsa Alanı: 245 m2
Toplam İnşaat Alanı: 245 m2