24/34
Paylaş
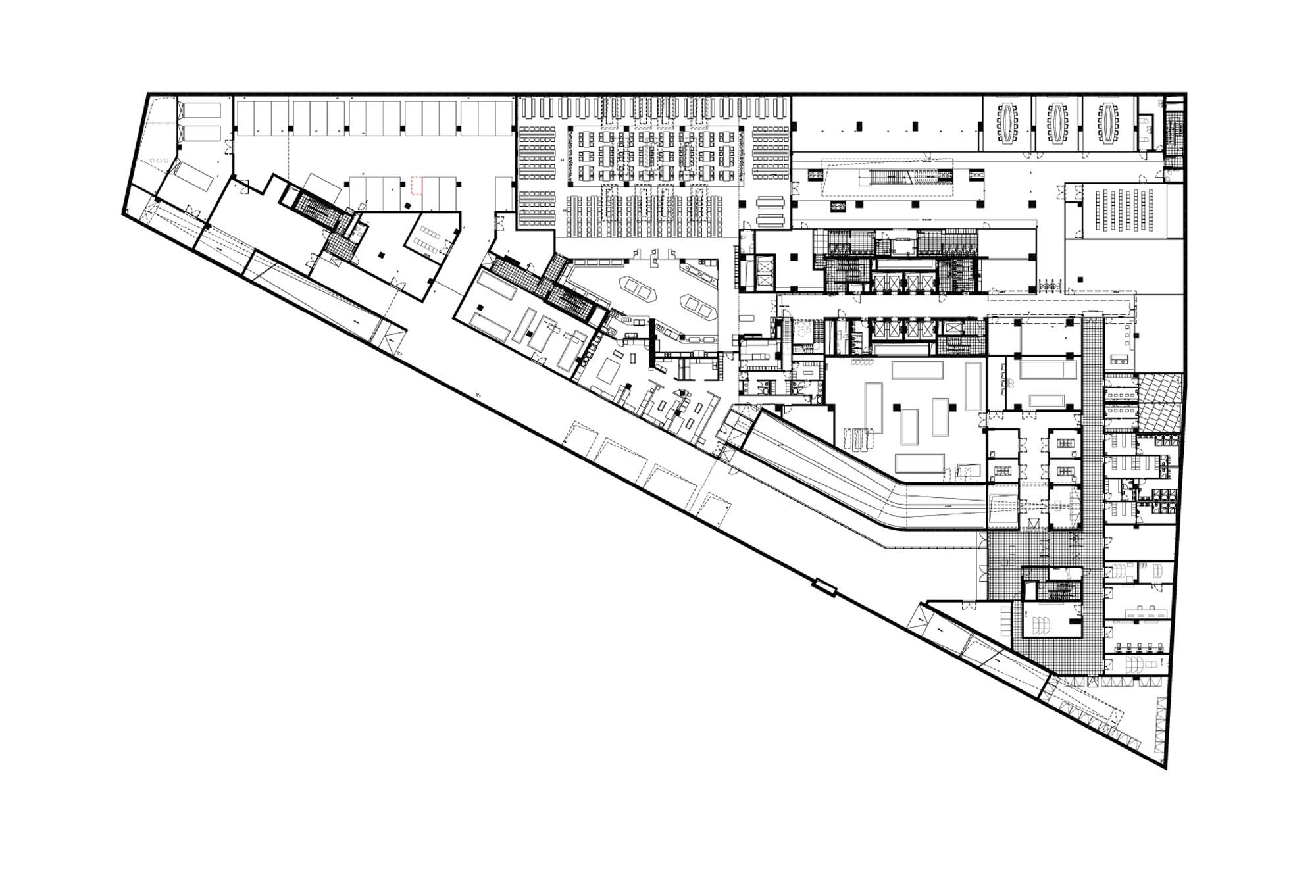
Resmi Orjinal Boyutunda Göster
Anadolu Gayrimenkul AND
Proje Yeri: İstanbul, Kadıköy
Proje Ofisi: HPP International Turkey
Proje Tipi: Ofis
Tasarım Ekibi: Gerhard G. Feldmeyer, Nurgül Ece, Buğrahan Şirin
Mimari Proje Ekibi: Gerhard G. Feldmeyer, Buğrahan Şirin, Nurgül Ece, Özlem Ünkap İliş, Sibel Özgenç, Hande Tombaz, Müge Sarıoğlu, Hüseyin Şahin, Batu Ayhan, Henrik Schulte, Elçin Kara Vatansever
İşveren: AND Anadolu Gayrimenkul Yatırımları AŞ
Proje Yöneticisi: İŞTE Proje Yönetimi
Cephe Tasarımı: HPP International Turkey, Priedemann Cephe Danışmanlığı Tic.Ltd. Şti.
Aydınlatma Projesi: Nergiz Arifoğlu Lightstyle - Mimari Aydınlatma Tasarımı ve Danışmanlığı
Statik Projesi: Probi İnşaat Proje Bilgi İşlem Merkezi
Mekanik Projesi: Giray Mühendislik
Elektrik Projesi: Pozitif Proje
Tesisat Projesi: Giray Mühendislik
Çelik Projesi: Probi İnşaat
Altyapı Projesi: Köroğlu Mühendislik
Yangın Güvenlik Danışmanı: Abdurrahman Kılıç, Etik Mühendislik
Mimari Mesleki Kontrollük: HPP International Turkey
Şantiye Yöneticisi: Tepe İnşaat
Proje Başlangıç Yılı: 2012
Proje Bitiş Yılı: 2014
İnşaat Başlangıç Yılı: 2014
İnşaat Bitiş Yılı: 2015
Toplam İnşaat Alanı: 73.320 m²