16/21
Paylaş
Resmi Orjinal Boyutunda Göster
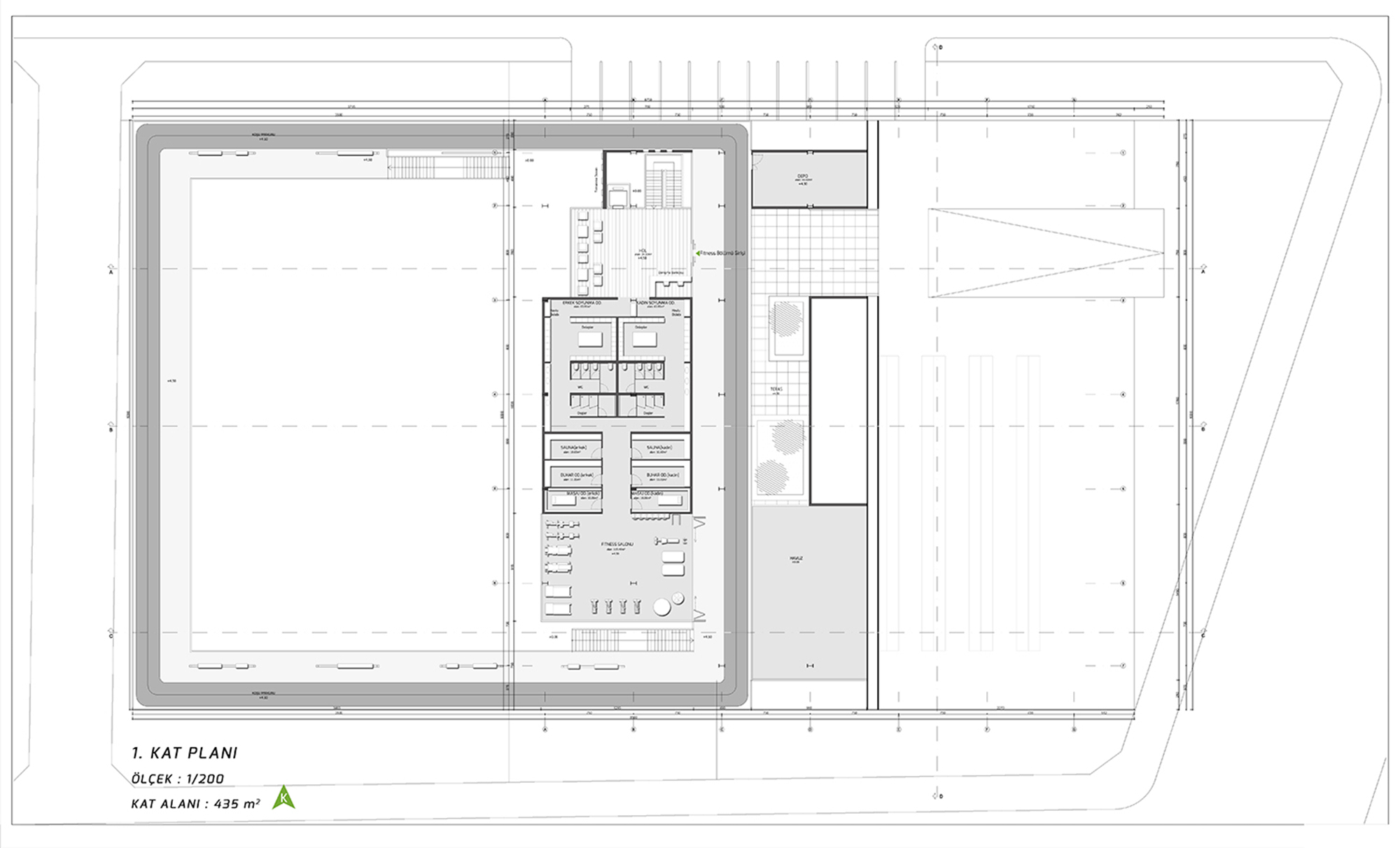
Çaycuma Spor Merkezi Mimari Proje Yarışması
Proje Yeri: Zonguldak, Çaycuma
Proje Ofisi: Stüdyo501
Proje Tipi: Kapalı Yüzme Havuzu
Proje Tipi Grubu: 1. Ödül
Tasarım Ekibi: Cenk Çeşmeli, Müge Erkılıç
Danışman: Tolga Çeşmeli