4/9
Paylaş
Resmi Orjinal Boyutunda Göster
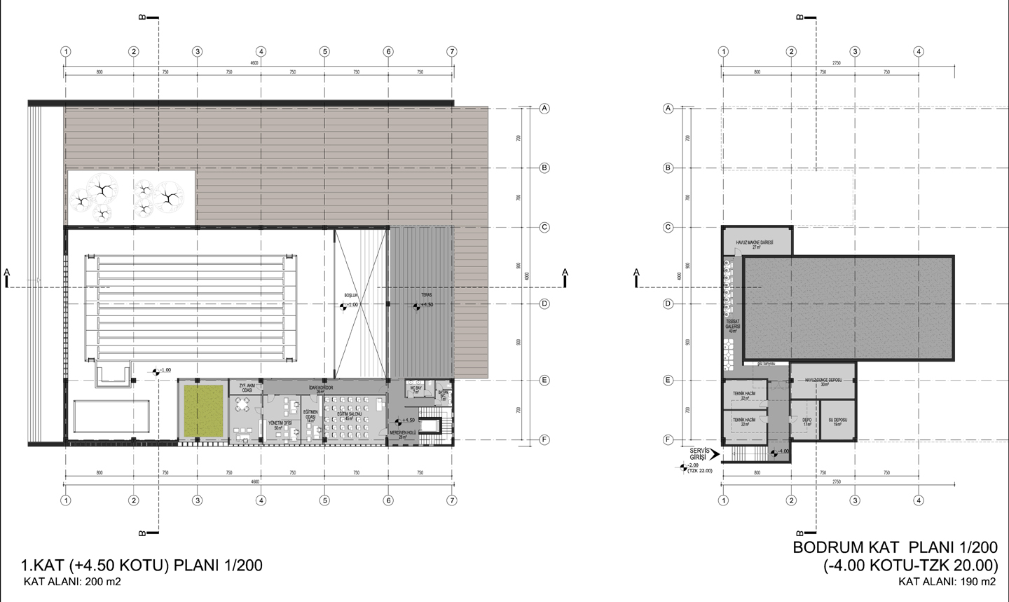
Katılımcı (ftb Mimarlık), Çaycuma Spor Merkezi Mimari Proje Yarışması
Proje Yeri: Çaycuma, Zonguldak
Proje Ofisi: FTB Mimarlık
Proje Tipi: Kapalı Yüzme Havuzu
Proje Tipi Grubu: Katılımcı
Tasarım Ekibi: Fatih Babaoğlu, Kadir Babaoğlu
Danışman: Sait Yaymanoğlu