8/11
Paylaş
Resmi Orjinal Boyutunda Göster
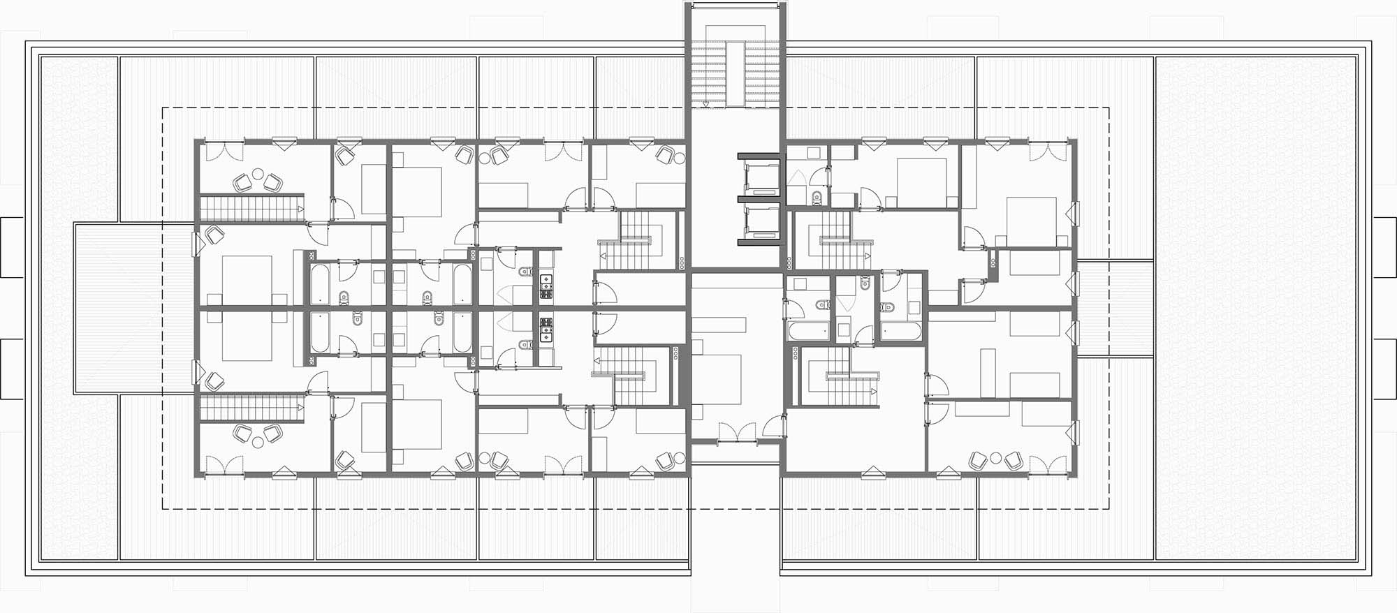
Life İstanbul Gündoğusu
Proje Yeri: Eyüpsultan, İstanbul
Proje Ofisi: CM Mimarlık
Proje Tipi: Apartman
Proje Tipi Grubu: Konut
Tasarım Ekibi: Cem Sorguç
İşveren: Yuvam İnşaat
Yardımcı: Cağrı Küçükay, Barış Kıldiş
Fotoğraf: Yuvam İnşaat, Cemal Emden
Proje Başlangıç Yılı: 2007
Proje Bitiş Yılı: 2008
İnşaat Başlangıç Yılı: 2010
Arsa Alanı: 1,903 m²
Toplam İnşaat Alanı: 9,955 m²