7/15
Paylaş
Resmi Orjinal Boyutunda Göster
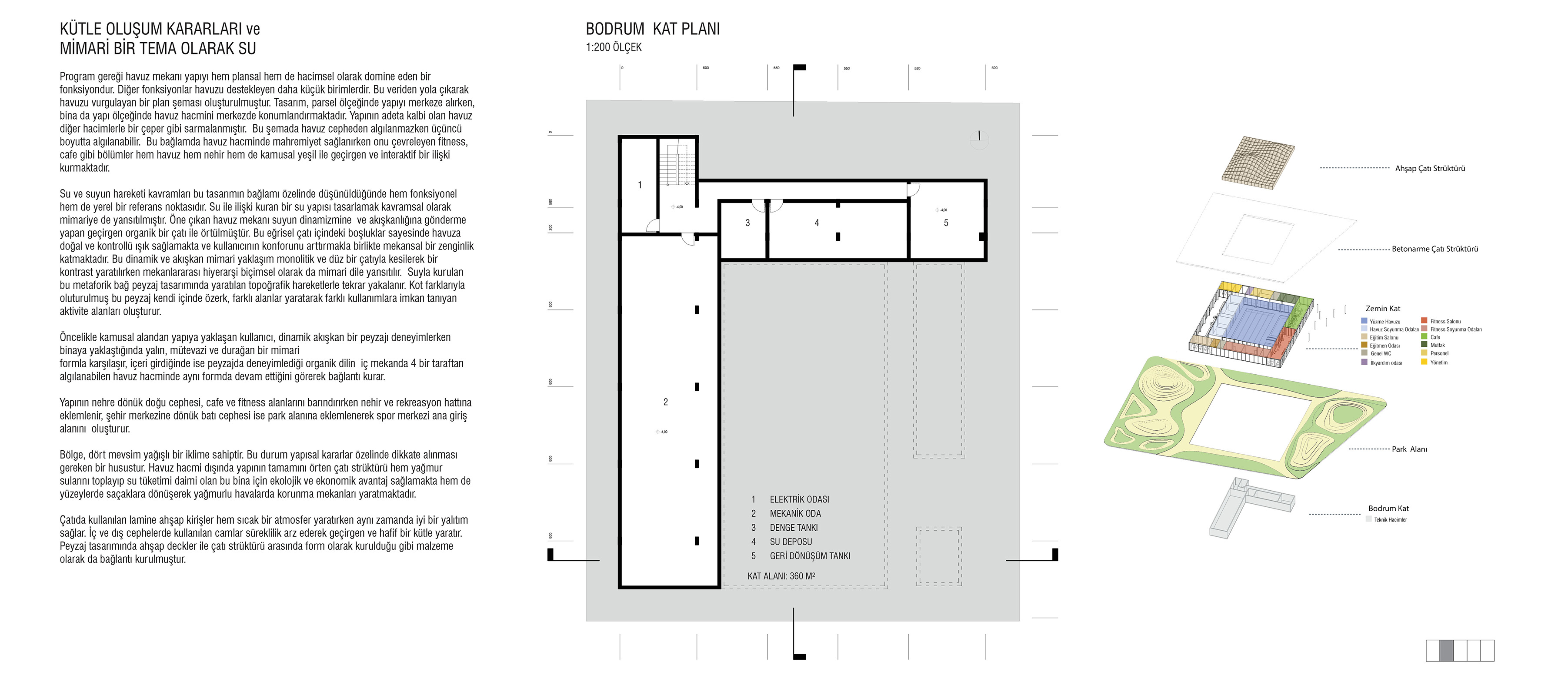
Katılımcı (GOA), Çaycuma Spor Merkezi Mimari Proje Yarışması
Proje Yeri: Zonguldak, Çaycuma
Proje Ofisi: Gülnar Ocakdan Architecture (GOA), Burak Kılıç Architects
Proje Tipi: Kapalı Yüzme Havuzu
Proje Tipi Grubu: Katılımcı
Tasarım Ekibi: Gülnar Ocakdan, Burak Kılıç, Bengüsu İbiş, Cem Berdan
Danışman: Mithat Bora Bulut