21/27
Paylaş
Resmi Orjinal Boyutunda Göster
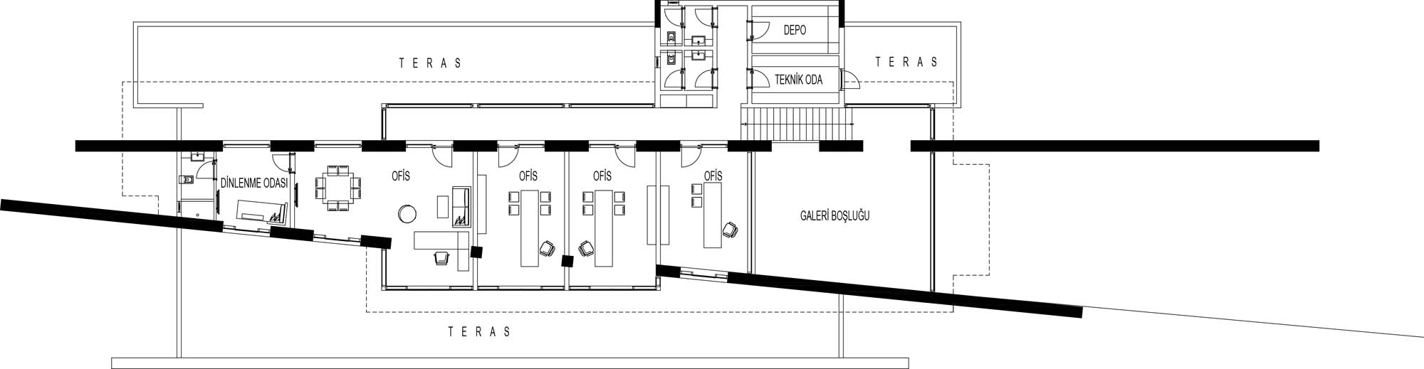
İstanbul Tarım Ofis Binası
Project Location: Antalya, Aksu
Project Office: Altındal Mimarlık
Project Type: Offices
Proje Tipi Grubu: Commercial
Tasarım Ekibi: Şevket Altındal
Employer: Ali Rıza Akıncı, İstanbul Tarım A.Ş.
Ana Yüklenici: Ali Rıza Akıncı
Peyzaj Mimarlığı: Hayriye Akıncı
Interior Architecture: Soner Mimarlık
Structural Project: Akın Akıncı
Mechanical Project: Kemal Açıkalın
Electrical Project: Baydoğan Mühendislik
Photography: Ali Rıza Akıncı
Project Start Date: 2014
Project End Date: 2014
Construction Start Date: 2015
Construction End Date: 2016
Building Plot Area: 153,000 m2
Total Construction Area: 900 m2