7/19
Paylaş
Resmi Orjinal Boyutunda Göster
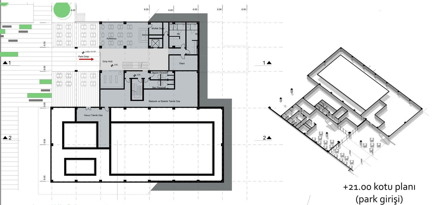
Katılımcı (Eylem Önal Şahin, Burcu Demirsan Avcı), Çaycuma Spor Merkezi Mimari Proje Yarışması
Proje Yeri: Çaycuma, Zonguldak
Proje Tipi: Kapalı Yüzme Havuzu
Proje Tipi Grubu: Katılımcı
Tasarım Ekibi: Eylem Önal Şahin, Burcu Demirsan Avcı
Danışman: Tarık Karataş, Fatma Yüzseven
Yardımcı: Eda Özgener, Ahmet Elginöz, Şenay Akay