4/9
Paylaş
Resmi Orjinal Boyutunda Göster
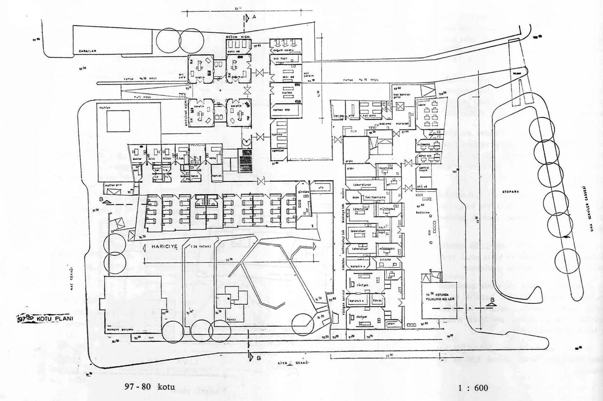
1. Ödül, Beyoğlu İlk Yardım hastanesi Mimari Proje Yarışması
Proje Yeri: İstanbul, Beyoğlu
Proje Tipi: Hastane / Poliklinik
Proje Tipi Grubu: 1. Ödül
Tasarım Ekibi: Yılmaz Tuncer, Yılmaz Sanlı, Güner Acar
Proje Başlangıç Yılı: 1965